Description

99 m²
5 pièces
3 chambres
1 garage

Dans un cadre urbain paisible du Perreux-Sur-Marne, cet appartement chaleureux de 99 m² vous invite à poser vos valises et à profiter d’un quotidien confortable, à deux pas des bords de Marne et de toutes les commodités. Appartement dans immeuble construit en 1990 en très bon état, il offre un cadre de vie agréable et fonctionnel, baigné de lumière grâce à son orientation sud.

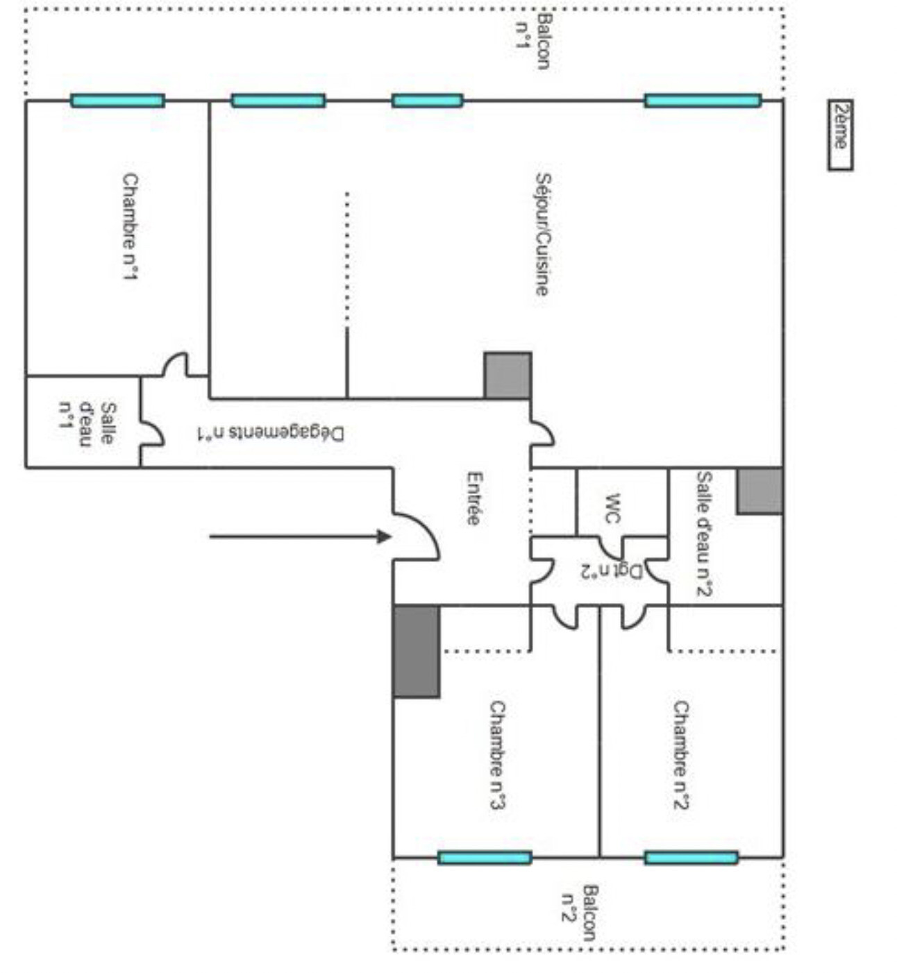
Cet appartement de 4 pièces se compose de trois chambres, idéales pour accueillir une famille ou aménager un espace bureau selon vos envies. Deux salles d’eau et deux WC viennent compléter l’agencement, apportant un confort appréciable au quotidien. La cuisine aménagée s’ouvre sur un espace convivial, parfait pour partager des moments simples et chaleureux. Deux balcons prolongent la pièce de vie et les chambres, offrant un petit coin d’extérieur où il fait bon se détendre.

Vous bénéficierez également d’une cave, pratique pour le rangement, ainsi que d’un box, un véritable atout en milieu urbain. Le chauffage électrique assure une ambiance douce et maîtrisée tout au long de l’année.

Cet appartement est disponible immédiatement, prêt à accueillir ses nouveaux habitants dans un environnement serein et proche de toutes les commodités. N’hésitez pas à venir le découvrir pour ressentir tout le potentiel de ce lieu où confort et bien-être se conjuguent au quotidien.

Les informations sur les risques auxquels ce bien est exposé sont disponibles sur le site Géorisques : www.georisques.gouv.fr

Caractéristiques

Honoraires charge
mandant
Type
maison
État général
très bon
Environnement
urbain
Orientation
Sud
Disponibilité
à l'acte
Construction
1990
Surface habitable
99 m²
Nb. chambres
3
Nb. salles d'eau
2
Nb. cuisines
1
Nb. garages
1
Nb. balcons
2
Types de cuisine
aménagée
Chauffages
électricité
Cave
Taxe foncière
2 241,00 €

Télécharger le barème des honoraires

Tous les outils pour vos projets immobiliers

Tous les outils pour vos projets immobiliers

Découvrez Mon CID,

mon compagnon immobilier digital

Accès à toutes les ventes immobilières,

boussole à réalité augmentée,

tester le débit de votre futur achat,

calculatrice de mensualité, etc.

Application mobile disponible sur

En savoir plus

Plans

Performance énergétique

logement extrêmement performant
bâtiment performantpassoire énergétique
  • A< 70
  • B70 - 110
  • C110 - 180175kWh/m².an5 *kg CO2/m².an
  • D180 - 250
  • E250 - 330
  • F330 - 420
  • G> 420
logement extrêmement peu performant

* Dont émissions de gaz à effet de serre

peu d'émissions de CO2
  • A< 65kg CO2/m².an
  • B6 - 11
  • C11 - 30
  • D30 - 50
  • E50 - 70
  • F70 - 100
  • G> 100
émissions de CO2 très importantes

Estimation des dépenses annuelles d'énergie pour un usage standard

entre 1 364 € et 1 846 € / an *

* Prix moyens des énergies indexés pour l'année 2025 (abonnement compris).

Simulation de prêt

(10% du prix du bien)
%
(taux moyen hors assurance)

Montant estimé

2488 € / mois *

* Calculs effectués sur la base d'un prêt à taux fixe de 3,37% sur une durée de 25 ans avec un apport de 10% et hors assurance. Le coût de l'assurance de prêt dépend du capital assuré, de votre âge, de la durée du prêt, du taux d'intérêt du prêt, de votre questionnaire de santé et/ou médical, et de votre profession. Les calculs et solutions indiqués ne revêtent aucun caractère contractuel et ne sont en aucun cas une offre de prêt. Seuls les banques et organismes de financement sont habilités à accorder un financement. Pour tout crédit immobilier, vous êtes protégés par un délai de réflexion de 10 jours. Aucun versement de quelque nature que ce soit ne peut être exigé d'un particulier avant l'obtention d'un ou de plusieurs prêts d'argent. L'achat est subordonné à l'obtention du prêt. S'il n'est pas obtenu, le vendeur doit rembourser les sommes versées. Un crédit vous engage et doit être remboursé. Vérifiez vos capacités de remboursement avant de vous engager.

Cette annonce vous intéresse ?

Prenez contact avec Eric Le Hen (EI)

Eric Le Hen

Agent commercial en immobilier immatriculé au RSAC de CRETEIL sous le n°951912690


ou

Autres annonces à découvrir...

Logo LF immo

Retrouvez les annonces immobilières de notre réseau d'agents ou devenez vous-même négociateur.

Coordonnées du siège

LF immo
2 rue du Chemin de Fer
La Wantzenau, 67610 (France)
+33 3 88 62 97 69
contact@bylf.fr

Chaque agent du réseau LF immo est juridiquement et financièrement indépendant.

Filtres SVG
Logo LF immo Logo LF immo LF immo

En poursuivant votre navigation sur ce site, vous acceptez l'utilisation de Cookies pour mesurer l'audience de notre site.

En savoir plus