Description

62 m²
3 pièces
1 chambre

Découvrez "Anna" – un appartement T2 bis de 62 m² dans le quartier très recherché des Beaux-Arts à Montpellier.
Un devis est disponible pour une transformation en T3.

Vivez au cœur d’un quartier vivant et authentique, à deux pas de la station de tramway Beaux-Arts et de toutes les commodités, commerces et terrasses.

Situé au 3 ème étage sans ascenseur d’un immeuble de 1956, cet appartement traversant Est-Ouest de type T2 bis séduit par sa luminosité et son potentiel.

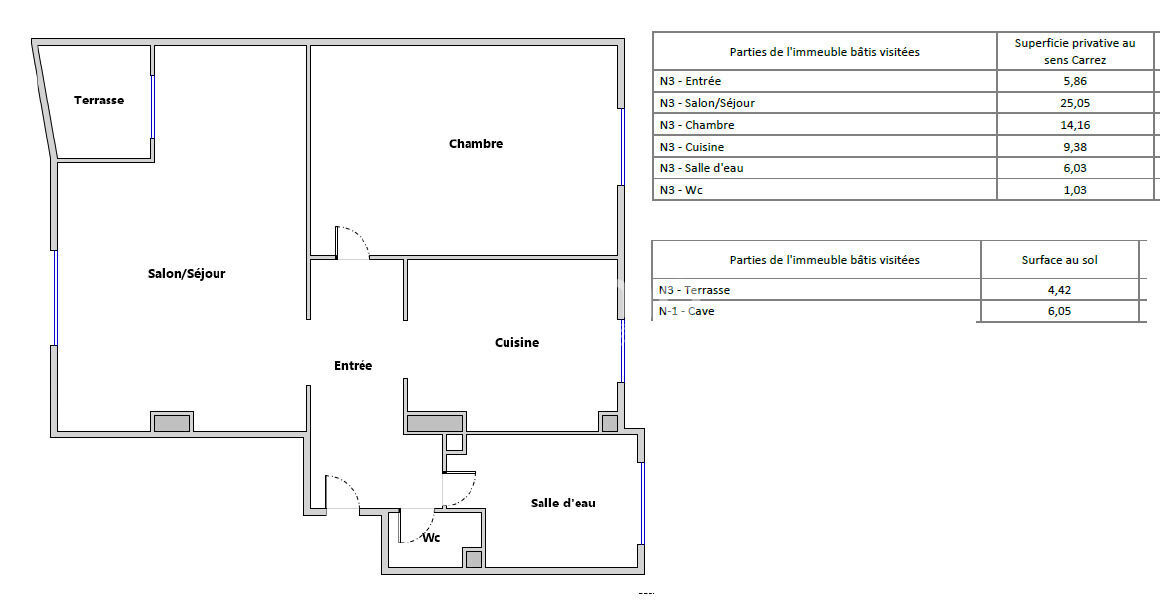
Le hall d’entrée dessert l’ensemble des pièces de l’appartement :
Un vaste séjour de 25 m², baigné de lumière, s’ouvre sur une terrasse sans vis-à-vis offrant une vue dégagée.
Une cuisine séparée et équipée d’environ 10 m², parfaite pour vos petits-déjeuners ou vos repas du soir.
Une chambre climatisée et spacieuse de 14 m² .
Une salle d’eau et des toilettes séparées .
Une cave de 6 m² est attribuée à ce bien.

Les plus : Chaudière individuelle au gaz changée il y a 2 ans, Local à vélo, climatisation, double vitrage, terrasse ensoleillée, le potentiel T3.

Cet appartement offre de multiples possibilités :
En résidence principale, profitez d’un cadre de vie confortable et d’une adresse prisée.
En investissement locatif, bénéficiez d’une forte demande sur le secteur: loyer de référence en meublé 973€ hors charges, loyer maximal autorisé 1165€ hors charge
Ou encore, réalisez une transformation en T3 pour optimiser l’espace et la valeur du bien.

Les informations sur les risques auxquels ce bien est exposé sont disponibles sur le site Géorisques : www.georisques.gouv.fr

Caractéristiques

Honoraires charge
mandant
Type
appartement
État général
bon
Environnement
centre ville
Orientation
Est
Disponibilité
à l'acte
Construction
1956
Surface habitable
62 m²
Étage
3
Nb. chambres
1
Nb. cuisines
1
Nb. balcons
1
Types de cuisine
équipée
Chauffages
gaz
Cave
Terrasse
Tout à l'égout
Bien soumis au statut de la copropriété
Procédure en cours
aucune
Charges budget prévisionnel annuel
1 330,00 €
Nb. de logements
31
Nb. de lots
60
Taxe foncière
1 300,00 €

Télécharger le barème des honoraires

Localisation Montpellier, 34000

Pour des raisons de confidentialité, la géolocalisation de ce bien a été dégradée.

Tous les outils pour vos projets immobiliers

Tous les outils pour vos projets immobiliers

Découvrez Mon CID,

mon compagnon immobilier digital

Accès à toutes les ventes immobilières,

boussole à réalité augmentée,

tester le débit de votre futur achat,

calculatrice de mensualité, etc.

Application mobile disponible sur

En savoir plus

Performance énergétique

logement extrêmement performant
bâtiment performantpassoire énergétique
  • A< 70
  • B70 - 110
  • C110 - 180
  • D180 - 250199kWh/m².an40 *kg CO2/m².an
  • E250 - 330
  • F330 - 420
  • G> 420
logement extrêmement peu performant

* Dont émissions de gaz à effet de serre

peu d'émissions de CO2
  • A< 6
  • B6 - 11
  • C11 - 30
  • D30 - 5040kg CO2/m².an
  • E50 - 70
  • F70 - 100
  • G> 100
émissions de CO2 très importantes

Estimation des dépenses annuelles d'énergie pour un usage standard

entre 1 180 € et 1 680 € / an *

* Prix moyens des énergies indexés pour l'année 2023 (abonnement compris).

Simulation de prêt

(10% du prix du bien)
%
(taux moyen hors assurance)

Montant estimé

975 € / mois *

* Calculs effectués sur la base d'un prêt à taux fixe de 3,39% sur une durée de 25 ans avec un apport de 10% et hors assurance. Le coût de l'assurance de prêt dépend du capital assuré, de votre âge, de la durée du prêt, du taux d'intérêt du prêt, de votre questionnaire de santé et/ou médical, et de votre profession. Les calculs et solutions indiqués ne revêtent aucun caractère contractuel et ne sont en aucun cas une offre de prêt. Seuls les banques et organismes de financement sont habilités à accorder un financement. Pour tout crédit immobilier, vous êtes protégés par un délai de réflexion de 10 jours. Aucun versement de quelque nature que ce soit ne peut être exigé d'un particulier avant l'obtention d'un ou de plusieurs prêts d'argent. L'achat est subordonné à l'obtention du prêt. S'il n'est pas obtenu, le vendeur doit rembourser les sommes versées. Un crédit vous engage et doit être remboursé. Vérifiez vos capacités de remboursement avant de vous engager.

Cette annonce vous intéresse ?

Prenez contact avec Samir Omais (EI)

Samir Omais

Agent commercial en immobilier immatriculé au RSAC de Montpellier sous le n°921295887

Ventes Titan de bronze 2024/2025

ou

Autres annonces à découvrir...

Logo LF immo

Retrouvez les annonces immobilières de notre réseau d'agents ou devenez vous-même négociateur.

Coordonnées du siège

LF immo
2 rue du Chemin de Fer
La Wantzenau, 67610 (France)
+33 3 88 62 97 69
contact@bylf.fr

Chaque agent du réseau LF immo est juridiquement et financièrement indépendant.

Filtres SVG
Logo LF immo Logo LF immo LF immo

En poursuivant votre navigation sur ce site, vous acceptez l'utilisation de Cookies pour mesurer l'audience de notre site.

En savoir plus