Description

278,51 m²
1544 m²
11 pièces
9 chambres
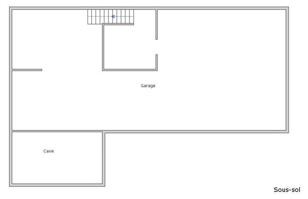
1 garage
piscine

Dans un environnement paisible et résidentiel à Saint-Médard-en-Jalles, cette maison chaleureuse vous invite à poser vos valises sans attendre.
Offrant un bel équilibre entre espace et confort, elle se prête parfaitement à une vie de famille épanouie, où chacun trouvera son espace de tranquillité.

Construite en 1987 et rénovée en 2025, cette demeure développe 480 m² au total, dont 278 m² habitables, sur un terrain généreux de 1 500 m².
Son architecture classique et son bon état témoignent d’un entretien attentif, prêt à accueillir vos projets de vie.
L’ensemble totalise 11 pièces, réparties harmonieusement pour favoriser convivialité et intimité.

Côté jour :
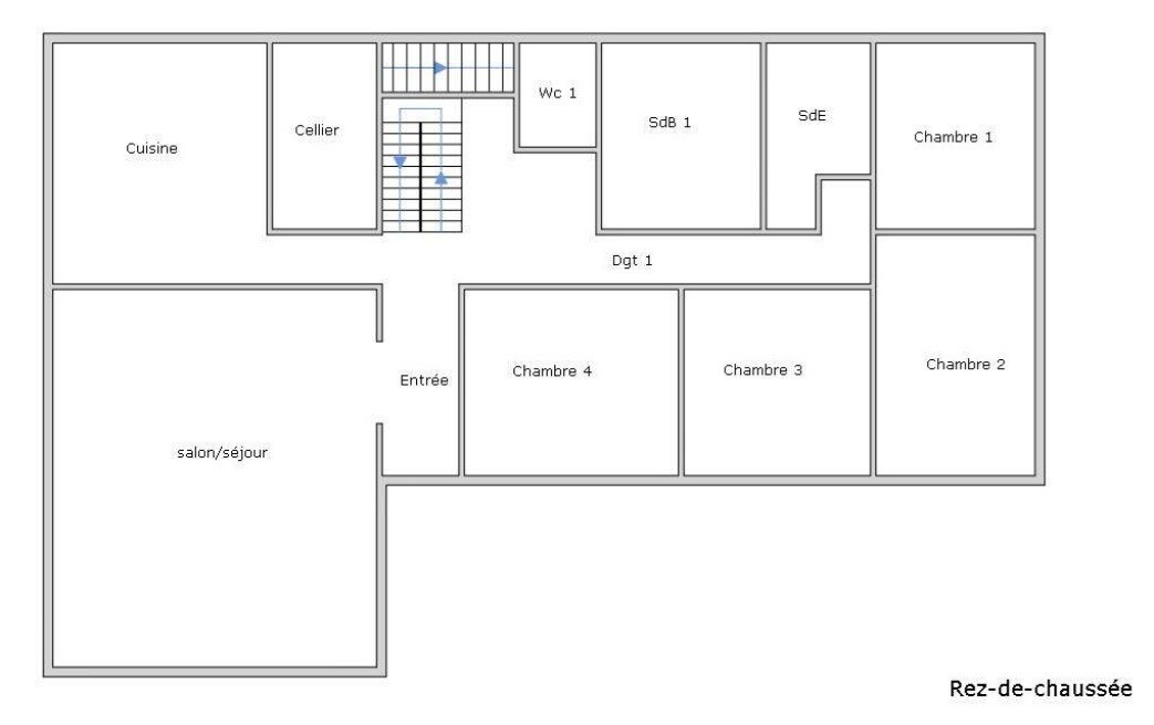
Une cuisine aménagée donnant sur un séjour lumineux, agrémenté d’une cheminée, véritable cœur chaleureux de la maison.

Côté nuit :
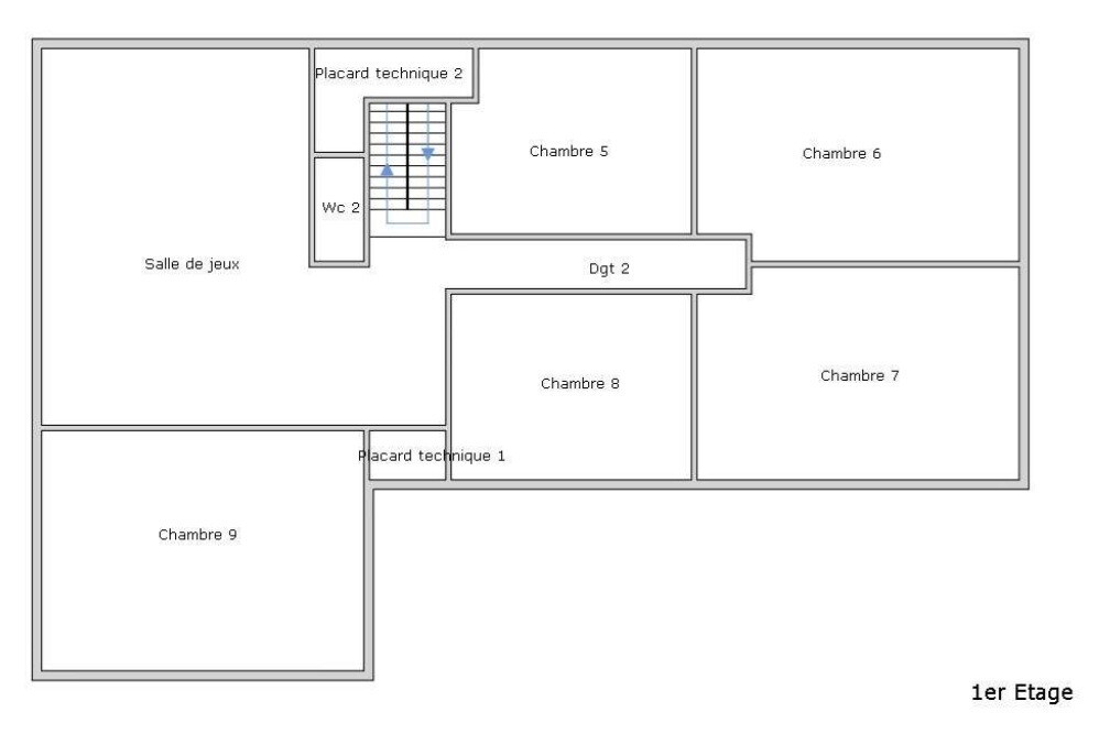
Vous découvrirez neuf chambres, 4 au rez-de-chaussée et 5 (à l'étage) équipées de climatisations réversibles et de salles d’eau , idéales pour accueillir une grande famille ou aménager des espaces dédiés au travail, aux loisirs ou aux invités.
La maison comprend également une salle de bain ainsi qu’une salle d’eau au rez-de-chaussée, assurant un confort optimal au quotidien.

Un très grand sous-sol/garage et cave complète ce bien.

Côté extérieurs :
Maison en deuxième ligne, entièrement clôturée avec portail électrique, et arborée avec goût.
Une terrasse orientée plein sud invite à profiter des beaux jours en toute sérénité.
Une piscine d’environ 13 x 6 m pour se détendre complète cette maison.

Le chauffage est assuré par un système mixte combinant bois, pompe à chaleur air/air et air/eau, garantissant une ambiance douce et économique.

La maison est située dans le quartier de Gajac, à proximité des écoles, d’un hypermarché, des commerces de proximité et de la ligne express G (à 5 minutes à pied).

Tout peut se faire à pied ou à vélo. La piste cyclable, proche de la maison, permet de rejoindre facilement le centre-ville ou de profiter de belles balades.

Disponible immédiatement, cette maison représente une belle opportunité pour celles et ceux qui souhaitent conjuguer espace, confort et qualité de vie dans un environnement résidentiel calme.

N’hésitez pas à venir la découvrir pour ressentir tout le potentiel de ce lieu où il fait bon vivre.

Les informations sur les risques auxquels ce bien est exposé sont disponibles sur le site Géorisques : www.georisques.gouv.fr

Caractéristiques

Honoraires charge
mandant
Type
maison
État général
bon
Environnement
zone Résidentielle
Orientation
Sud
Disponibilité
immédiate
Construction
1987
Rénovation
2025
Surface totale
480 m²
Surface terrain
1544 m²
Surface habitable
278,51 m²
Nb. chambres
9
Nb. salles de bains
1
Nb. salles d'eau
6
Nb. cuisines
1
Nb. garages
1
Nb. parking
8
Types de cuisine
aménagée
Chauffages
bois, pompe à chaleur air/air et pompe à chaleur air/eau
Parking privé
Terrasse
Piscine
Cheminée
Tout à l'égout
Taxe foncière
3 400,00 €

Télécharger le barème des honoraires

Localisation Saint-Médard-En-Jalles, 33160

Pour des raisons de confidentialité, la géolocalisation de ce bien a été dégradée.

Tous les outils pour vos projets immobiliers

Tous les outils pour vos projets immobiliers

Découvrez Mon CID,

mon compagnon immobilier digital

Accès à toutes les ventes immobilières,

boussole à réalité augmentée,

tester le débit de votre futur achat,

calculatrice de mensualité, etc.

Application mobile disponible sur

En savoir plus

Plans

Détail des pièces

Sous sol 150 m²
Buanderie 23 m²

Entrée 18 m²
Dégagement 1 6,7 m²
Pièce de vie 41 m²
Cuisine 16 m²
Toilettes 2,2 m²
Salle de bain 10 m²
Chambre 1 9,1 m²
Chambre 2 15 m²
Chambre 3 12 m²
Chambre 4 12 m²
Salle d'eau 4,9 m²
Cellier 5,8 m²

Dégagement 2 4,9 m²
Espace de vie / salle jeu 33 m²
Toilette 2,1 m²
Chambre 5 11 m²
Chambre 6 17 m²
Chambre 7 17 m²
Chambre 8 12 m²
Chambre 9 28 m²
Placard technique 1,4 m²
Placard technique 0,1 m²

Performance énergétique

logement extrêmement performant
bâtiment performantpassoire énergétique
  • A< 7064kWh/m².an2 *kg CO2/m².an
  • B70 - 110
  • C110 - 180
  • D180 - 250
  • E250 - 330
  • F330 - 420
  • G> 420
logement extrêmement peu performant

* Dont émissions de gaz à effet de serre

peu d'émissions de CO2
  • A< 62kg CO2/m².an
  • B6 - 11
  • C11 - 30
  • D30 - 50
  • E50 - 70
  • F70 - 100
  • G> 100
émissions de CO2 très importantes

Estimation des dépenses annuelles d'énergie pour un usage standard

entre 1 440 € et 2 030 € / an *

* Prix moyens des énergies indexés pour l'année 2023 (abonnement compris).

Simulation de prêt

(10% du prix du bien)
%
(taux moyen hors assurance)

Montant estimé

3870 € / mois *

* Calculs effectués sur la base d'un prêt à taux fixe de 3,37% sur une durée de 25 ans avec un apport de 10% et hors assurance. Le coût de l'assurance de prêt dépend du capital assuré, de votre âge, de la durée du prêt, du taux d'intérêt du prêt, de votre questionnaire de santé et/ou médical, et de votre profession. Les calculs et solutions indiqués ne revêtent aucun caractère contractuel et ne sont en aucun cas une offre de prêt. Seuls les banques et organismes de financement sont habilités à accorder un financement. Pour tout crédit immobilier, vous êtes protégés par un délai de réflexion de 10 jours. Aucun versement de quelque nature que ce soit ne peut être exigé d'un particulier avant l'obtention d'un ou de plusieurs prêts d'argent. L'achat est subordonné à l'obtention du prêt. S'il n'est pas obtenu, le vendeur doit rembourser les sommes versées. Un crédit vous engage et doit être remboursé. Vérifiez vos capacités de remboursement avant de vous engager.

Cette annonce vous intéresse ?

Prenez contact avec Michaël Larant (EI)

Michaël Larant

Agent commercial en immobilier immatriculé au RSAC de BORDEAUX sous le n°907635809

Ventes Titan d'argent 2023/2024
Ventes Titan de bronze 2024/2025

ou

Autres annonces à découvrir...

Logo LF immo

Retrouvez les annonces immobilières de notre réseau d'agents ou devenez vous-même négociateur.

Coordonnées du siège

LF immo
2 rue du Chemin de Fer
La Wantzenau, 67610 (France)
+33 3 88 62 97 69
contact@bylf.fr

Chaque agent du réseau LF immo est juridiquement et financièrement indépendant.

Filtres SVG
Logo LF immo Logo LF immo LF immo

En poursuivant votre navigation sur ce site, vous acceptez l'utilisation de Cookies pour mesurer l'audience de notre site.

En savoir plus