Description

107,5 m²
3 pièces
2 chambres
1 garage
1 sdb

Appartement au coeur des 3 frontières - Élégance et Volumes à Village-Neuf

Il est des lieux qui imposent le respect dès le seuil franchi.
Ce bien n'est pas qu'un appartement ; c'est une signature architecturale où chaque détail a été pensé pour une clientèle exigeante en quête de lumière et de sérénité.

Une Réception Spectaculaire :

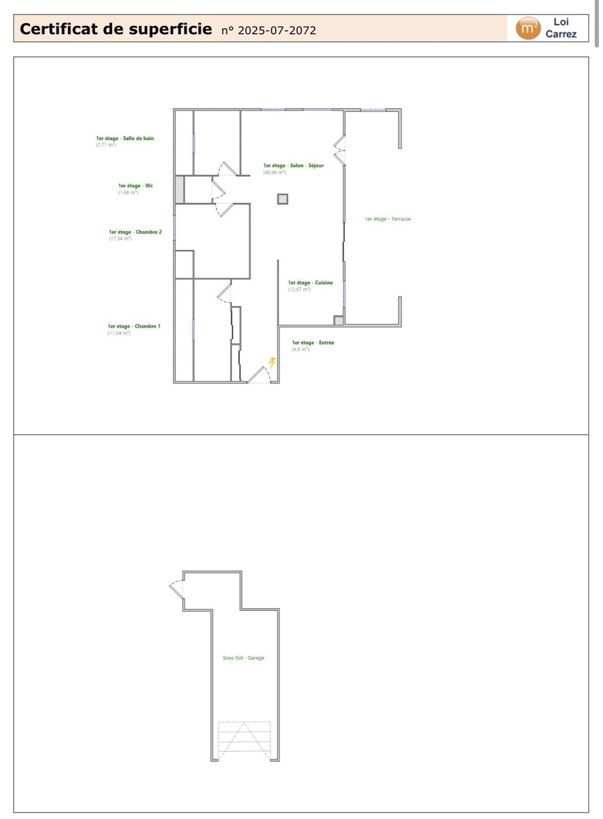
La pièce maîtresse de ce bien est sans conteste son espace de vie de 47 m².
Baigné de lumière, ce volume s'articule autour d'une cuisine Wanner de haute facture. Mariage parfait entre esthétique minimaliste et équipements de pointe, elle ravira les passionnés de gastronomie et d'art de recevoir.

L’Art du Repos : Un Espace Nuit Magistral

L'agencement privilégie l'intimité et le confort absolu avec deux chambres aux volumes généreux :
• Une Suite de 18 m² dotée d'un dressing sur mesure de grande capacité.
• Une seconde chambre de 12 m², également équipée de rangements intégrés.
• Salle de bain de standing : Un véritable espace bien-être combinant douche à l’italienne, baignoire et double vasque. WC indépendant.

La Terrasse : Votre Jardin Suspendu

Véritable prolongement naturel du séjour, la terrasse de plus de 32 m² exposée plein Sud est un luxe rare. Équipée d'un store motorisé, elle devient une pièce de vie supplémentaire dès les premiers rayons de soleil, offrant un cadre idéal pour vos réceptions en extérieur.

Des Prestations Techniques d'Excellence
Parce que le luxe se niche aussi dans le confort invisible :

• Confort thermique : Chauffage au sol (gaz)
• Qualité de vie : Adoucisseur d’eau et finitions de haute qualité.
• Mobilier de prestige : L'appartement est cédé avec du mobilier signé Wanner, garantissant une cohérence esthétique et un standing immédiat.

Des Annexes Hors Normes
Ce bien se distingue également par ses capacités de stockage et de stationnement, souvent le point faible du collectif :

• Garage double de 40 m² avec porte motorisée
• Cave privative de 24 m² aménagée avec coin buanderie.

L'avis de votre Agent : "Rare sur le secteur, cet appartement coche toutes les cases : volume, luminosité, prestations haut de gamme et annexes XXL. Un bien clé en main pour acquéreur avisé."

Visite conseillée au plus vite (et sans modération) avec Fabien au 07.45.55.20.18

Les informations sur les risques auxquels ce bien est exposé sont disponibles sur le site Géorisques : www.georisques.gouv.fr

Caractéristiques

Honoraires charge
mandant
Type
appartement
État général
très bon
Environnement
village
Orientation
Sud
Disponibilité
à l'acte
Construction
2006
Surface totale
115 m²
Surface habitable
107,5 m²
Étage
2
Nb. chambres
2
Nb. salles de bains
1
Nb. cuisines
1
Nb. garages
1
Nb. balcons
1
Types de cuisine
équipée
Chauffages
gaz
Chauffage collectif
Accès handicapé
Sous-sol
Cave
Terrasse
Tout à l'égout
Attique
Bien soumis au statut de la copropriété
Procédure en cours
aucune
Charges budget prévisionnel annuel
2 500,00 €
Nb. de logements
5
Nb. de lots
5
Taxe foncière
1 400,00 €

Télécharger le barème des honoraires

Localisation Village-Neuf, 68128

Pour des raisons de confidentialité, la géolocalisation de ce bien a été dégradée.

Tous les outils pour vos projets immobiliers

Tous les outils pour vos projets immobiliers

Découvrez Mon CID,

mon compagnon immobilier digital

Accès à toutes les ventes immobilières,

boussole à réalité augmentée,

tester le débit de votre futur achat,

calculatrice de mensualité, etc.

Application mobile disponible sur

En savoir plus

Plans

Performance énergétique

logement extrêmement performant
bâtiment performantpassoire énergétique
  • A< 70
  • B70 - 110
  • C110 - 180
  • D180 - 250157kWh/m².an30 *kg CO2/m².an
  • E250 - 330
  • F330 - 420
  • G> 420
logement extrêmement peu performant

* Dont émissions de gaz à effet de serre

peu d'émissions de CO2
  • A< 6
  • B6 - 11
  • C11 - 30
  • D30 - 5030kg CO2/m².an
  • E50 - 70
  • F70 - 100
  • G> 100
émissions de CO2 très importantes

Estimation des dépenses annuelles d'énergie pour un usage standard

entre 1 410 € et 1 960 € / an *

* Prix moyens des énergies indexés pour l'année 2024 (abonnement compris).

Simulation de prêt

(10% du prix du bien)
%
(taux moyen hors assurance)

Montant estimé

1922 € / mois *

* Calculs effectués sur la base d'un prêt à taux fixe de 3,32% sur une durée de 25 ans avec un apport de 10% et hors assurance. Le coût de l'assurance de prêt dépend du capital assuré, de votre âge, de la durée du prêt, du taux d'intérêt du prêt, de votre questionnaire de santé et/ou médical, et de votre profession. Les calculs et solutions indiqués ne revêtent aucun caractère contractuel et ne sont en aucun cas une offre de prêt. Seuls les banques et organismes de financement sont habilités à accorder un financement. Pour tout crédit immobilier, vous êtes protégés par un délai de réflexion de 10 jours. Aucun versement de quelque nature que ce soit ne peut être exigé d'un particulier avant l'obtention d'un ou de plusieurs prêts d'argent. L'achat est subordonné à l'obtention du prêt. S'il n'est pas obtenu, le vendeur doit rembourser les sommes versées. Un crédit vous engage et doit être remboursé. Vérifiez vos capacités de remboursement avant de vous engager.

Cette annonce vous intéresse ?

Prenez contact avec Fabien Simon (EI)

Fabien Simon

Agent commercial en immobilier immatriculé au RSAC de Mulhouse sous le n°905280145


ou

Autres annonces à découvrir...

Logo LF immo

Retrouvez les annonces immobilières de notre réseau d'agents ou devenez vous-même négociateur.

Coordonnées du siège

LF immo
2 rue du Chemin de Fer
La Wantzenau, 67610 (France)
+33 3 88 62 97 69
contact@bylf.fr

Chaque agent du réseau LF immo est juridiquement et financièrement indépendant.

Filtres SVG
Logo LF immo Logo LF immo LF immo

En poursuivant votre navigation sur ce site, vous acceptez l'utilisation de Cookies pour mesurer l'audience de notre site.

En savoir plus