Description

108 m²
4 pièces
3 chambres
1 sdb


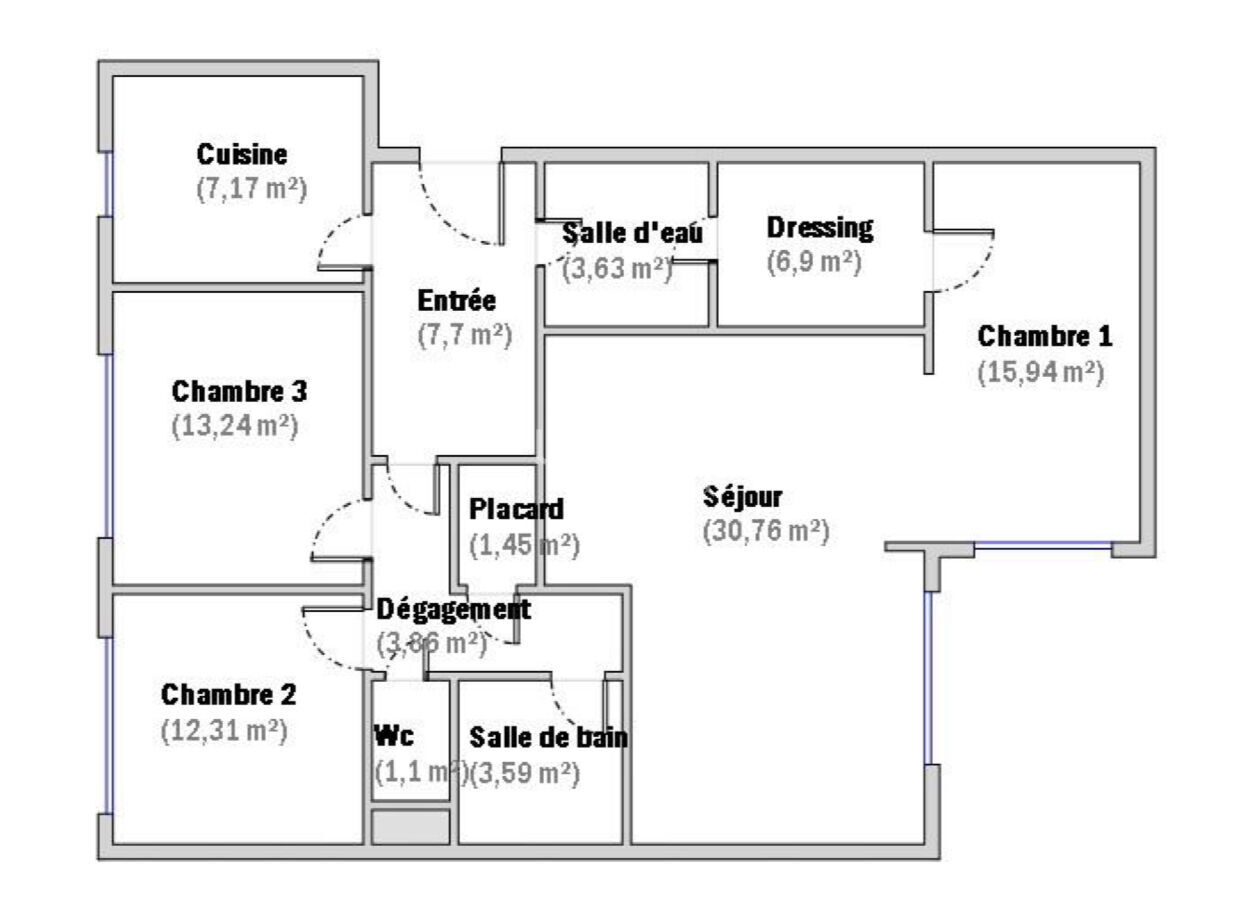
Découvrez cet appartement de 4 pièces, traversant, lumineux, avec vue, de 107 m²,situé au dernier étage d'un immeuble bien entretenu avec gardien.
Il est idéalement situé dans le quartier Bel Air de Paris, proche du bois, des commerces et des transports.
Dès l'entrée, vous serez séduit par la luminosité qui inonde chaque pièce grâce à de grandes fenêtres.
Il est composé d'une entrée, d'un vaste séjour, salon/salle à manger de 30m2, d'une cuisine, de trois chambres, d'une salle de bain, d'une salle d'eau, d'un dressing et d'un wc. Des travaux de rénovation sont à prévoir.
Le bien est complété d'une cave.
Contactez-moi dès maintenant pour organiser une visite.

Les informations sur les risques auxquels ce bien est exposé sont disponibles sur le site Géorisques : www.georisques.gouv.fr

Caractéristiques

Honoraires charge
mandant
Type
appartement
État général
à rénover entièrement
Environnement
urbain
Disponibilité
à l'acte
Construction
1961
Surface habitable
108 m²
Étage
10
Floor count
10
Nb. chambres
3
Nb. salles de bains
1
Nb. salles d'eau
1
Nb. cuisines
1
Types de cuisine
équipement de base
Chauffages
géothermie
Chauffage collectif
Cave
Ascenseur
Concierge
Dernier étage
Bien soumis au statut de la copropriété
Procédure en cours
aucune
Charges budget prévisionnel annuel
5 000,00 €
Nb. de logements
74
Nb. de lots
86
Taxe foncière
2 000,00 €

Télécharger le barème des honoraires

Localisation Paris, 75012

Tous les outils pour vos projets immobiliers

Tous les outils pour vos projets immobiliers

Découvrez Mon CID,

mon compagnon immobilier digital

Accès à toutes les ventes immobilières,

boussole à réalité augmentée,

tester le débit de votre futur achat,

calculatrice de mensualité, etc.

Application mobile disponible sur

En savoir plus

Performance énergétique

logement extrêmement performant
bâtiment performantpassoire énergétique
  • A< 70
  • B70 - 110
  • C110 - 180
  • D180 - 250
  • E250 - 330
  • F330 - 420375kWh/m².an82 *kg CO2/m².anLogement à consommation énergétique excessive
  • G> 420
logement extrêmement peu performant

* Dont émissions de gaz à effet de serre

peu d'émissions de CO2
  • A< 6
  • B6 - 11
  • C11 - 30
  • D30 - 50
  • E50 - 70
  • F70 - 10082kg CO2/m².an
  • G> 100
émissions de CO2 très importantes

Estimation des dépenses annuelles d'énergie pour un usage standard

entre 3 180 € et 4 360 € / an *

* Prix moyens des énergies indexés pour l'année 2025 (abonnement compris).

Simulation de prêt

(10% du prix du bien)
%
(taux moyen hors assurance)

Montant estimé

3547 € / mois *

* Calculs effectués sur la base d'un prêt à taux fixe de 3,35% sur une durée de 25 ans avec un apport de 10% et hors assurance. Le coût de l'assurance de prêt dépend du capital assuré, de votre âge, de la durée du prêt, du taux d'intérêt du prêt, de votre questionnaire de santé et/ou médical, et de votre profession. Les calculs et solutions indiqués ne revêtent aucun caractère contractuel et ne sont en aucun cas une offre de prêt. Seuls les banques et organismes de financement sont habilités à accorder un financement. Pour tout crédit immobilier, vous êtes protégés par un délai de réflexion de 10 jours. Aucun versement de quelque nature que ce soit ne peut être exigé d'un particulier avant l'obtention d'un ou de plusieurs prêts d'argent. L'achat est subordonné à l'obtention du prêt. S'il n'est pas obtenu, le vendeur doit rembourser les sommes versées. Un crédit vous engage et doit être remboursé. Vérifiez vos capacités de remboursement avant de vous engager.

Cette annonce vous intéresse ?

Prenez contact avec Nathalie Dubowsky (EI)

Nathalie Dubowsky

Agent commercial en immobilier immatriculé au RSAC de Créteil sous le n°422137802

Ventes Titan d'argent 2023/2024

ou

Autres annonces à découvrir...

Logo LF immo

Retrouvez les annonces immobilières de notre réseau d'agents ou devenez vous-même négociateur.

Coordonnées du siège

LF immo
2 rue du Chemin de Fer
La Wantzenau, 67610 (France)
+33 3 88 62 97 69
contact@bylf.fr

Chaque agent du réseau LF immo est juridiquement et financièrement indépendant.

Filtres SVG
Logo LF immo Logo LF immo LF immo

En poursuivant votre navigation sur ce site, vous acceptez l'utilisation de Cookies pour mesurer l'audience de notre site.

En savoir plus