

219 000 € à partir de 967 € / mois *
T4 72m2 rez-de-chaussée élevé Aubagne Centre
Aubagne, 13400
- 72 m²
- 4 pièces
- 3 chambres
- 1 sdb
🏡🏡 Saint-Genis-Laval – Maison familiale de 155 m² avec jardin arboré
LFImmo vous présente cette charmante maison familiale pleine de cachet, située dans un secteur résidentiel calme et verdoyant, à proximité immédiate de toutes les commodités.
Implantée sur un terrain plat et arboré de 765 m², elle offre un cadre de vie confortable et fonctionnel, idéal pour une famille.
🔹 Les atouts du bien :
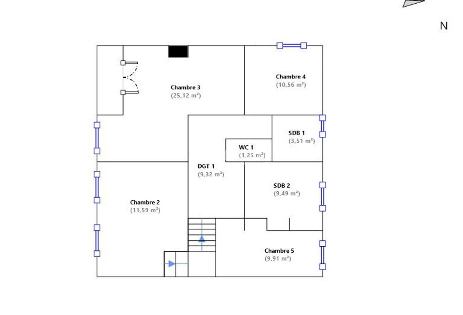
• Surface habitable : 155 m² sur 2 niveaux
• Terrain : 765 m² clos, plat et arboré
• 5 chambres, dont une suite parentale de 25 m²
• 3 pièces d’eau (1 salle de bains + 2 salles d’eau)
• Stationnements extérieurs et abri de jardin
🛋️ Disposition intérieure :
Rez-de-chaussée :
• Entrée avec rangement
• Séjour lumineux de 31 m², exposé Sud-Ouest, avec cheminée à insert
• Cuisine équipée de 15 m² avec accès direct à la terrasse orientée Est
• Chambre avec salle d’eau privative
• Buanderie, WC séparés, cagibi sous escalier
Étage :
• Dégagement avec placards
• Suite parentale de 25 m² avec rangements
• 3 chambres supplémentaires (10 à 12 m²)
• Grande salle de bains avec baignoire et douche
• Salle d’eau, WC séparés
• Accès aux combles/grenier
⚙️ Équipements & confort :
• Chauffage électrique par chaudière à circulation d’eau
• Double vitrage PVC au rez-de-chaussée, avec volets roulants motorisés
• Double vitrage à l’étage sur menuiseries d’origine
• Isolation des combles et isolation par l’extérieur (2019)
• Gouttières, sous-faces et bandeaux refaits
• Alarme, interphone, pré-câblage pour portail motorisé
📍 Un emplacement stratégique :
• Métro B à proximité
• Arrêt de bus à 4 minutes à pied
• Commerces, écoles, collèges, lycée et centre commercial Auchan Saint-Genis 2 accessibles rapidement
• Accès autoroutiers faciles
💰 Taxe foncière : 1 396 €
Les informations sur les risques auxquels ce bien est exposé sont disponibles sur le site Géorisques : www.georisques.gouv.fr
Pour des raisons de confidentialité, la géolocalisation de ce bien a été dégradée.
Découvrez Mon CID,
mon compagnon immobilier digital
Accès à toutes les ventes immobilières,
boussole à réalité augmentée,
tester le débit de votre futur achat,
calculatrice de mensualité, etc.
entre 2 270 € et 3 100 € / an *
* Prix moyens des énergies indexés pour l'année 2023 (abonnement compris).
* Calculs effectués sur la base d'un prêt à taux fixe de 3,31% sur une durée de 25 ans avec un apport de 10% et hors assurance. Le coût de l'assurance de prêt dépend du capital assuré, de votre âge, de la durée du prêt, du taux d'intérêt du prêt, de votre questionnaire de santé et/ou médical, et de votre profession. Les calculs et solutions indiqués ne revêtent aucun caractère contractuel et ne sont en aucun cas une offre de prêt. Seuls les banques et organismes de financement sont habilités à accorder un financement. Pour tout crédit immobilier, vous êtes protégés par un délai de réflexion de 10 jours. Aucun versement de quelque nature que ce soit ne peut être exigé d'un particulier avant l'obtention d'un ou de plusieurs prêts d'argent. L'achat est subordonné à l'obtention du prêt. S'il n'est pas obtenu, le vendeur doit rembourser les sommes versées. Un crédit vous engage et doit être remboursé. Vérifiez vos capacités de remboursement avant de vous engager.
Prenez contact avec Béatrix Quesada-Pouzin (EI)
Agent commercial en immobilier immatriculé au RSAC de Lyon sous le n°754097350
219 000 € à partir de 967 € / mois *
Aubagne, 13400
335 000 € à partir de 1 479 € / mois *
Marseille, 13011 - 0 km
179 000 € à partir de 790 € / mois *
Les Pennes Mirabeau, 13170
890 000 € à partir de 3 929 € / mois *
Marseille, 13009
226 000 € à partir de 998 € / mois *
Ytres, 62124
50 000 € à partir de 221 € / mois *
Francaltroff, 57670