Description

40,67 m²
2 pièces
1 chambre

Villa du Golf, résidence de standing neuve, sécurisée, avec ascenseur et parking privatif en sous-sol.

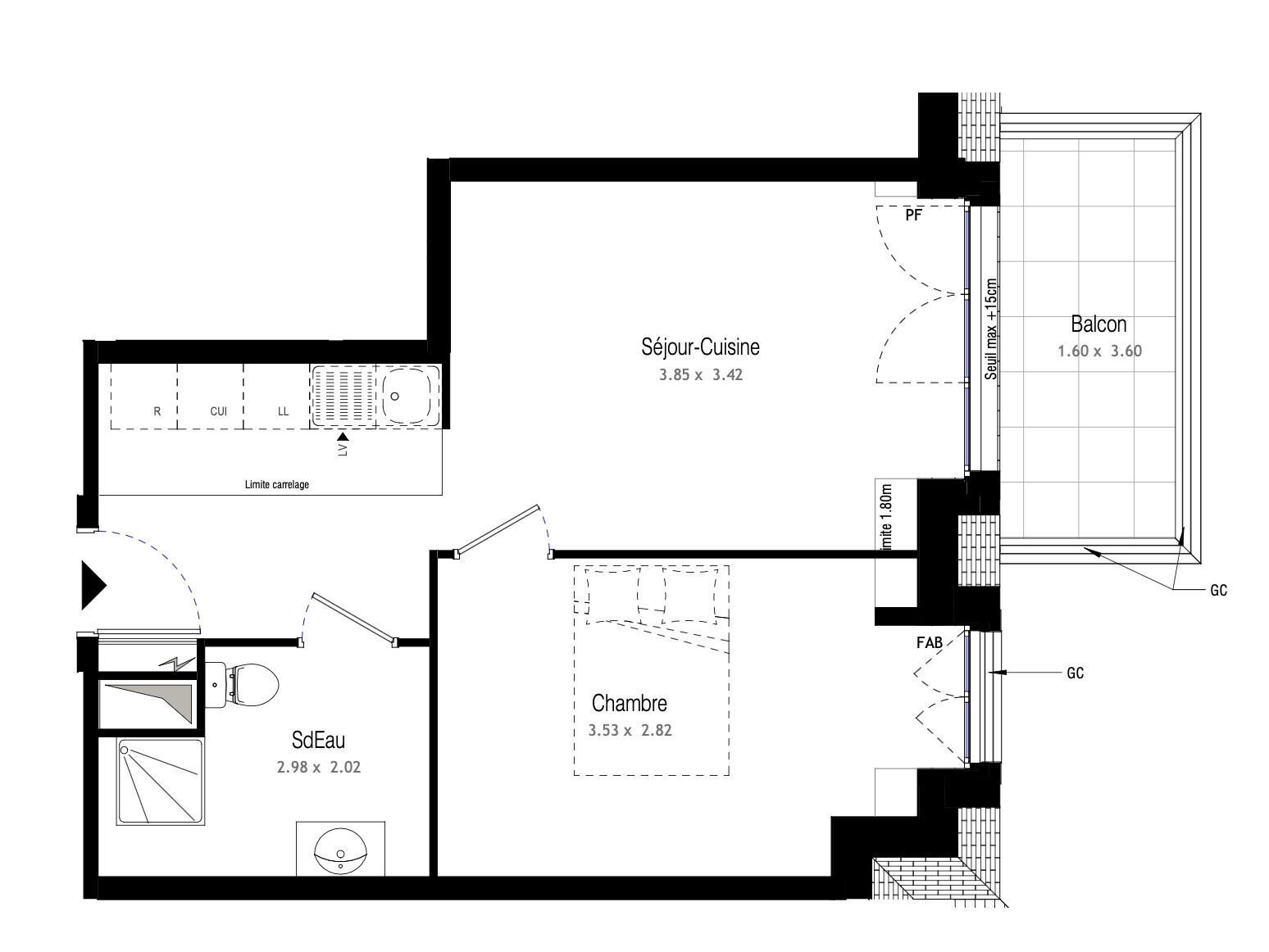
Quartier du Plant proche de la Fourchette, à deux pas du Golf du Tremblay, au calme absolu côté jardin, beau deux pièces de 40m2 au 4eme et dernier étage avec terrasse exposée EST.

Séjour parqueté de 23m2 avec cuisine ouverte aménagée et semi-équipée (plaque induction, hotte), une chambre spacieuse de 12m2, une salle d'eau avec douche italienne, lavabo vasque avec tiroirs, miroir/luminaire, sèche-serviette et toilettes.

Prestations de qualité : parquet, thermostat/chauffage collectif, volets roulants, fibre, interphone/vigik ...
DPE en C - Double vitrage.

Tous commerces, restaurants, marché, transports, Parc du Tremblay, Golf.

Bus 106 et 317 devant la résidence "Arrêt Les Marronniers"
Vous serez à moins de 10mn du RER A de Joinville et du RER E de Champigny/Les Boullereaux et des Bords de Marne.

Loyer : 1250 euros (dont provision pour charges de 150 euros incluant chauffage, eau F/C et charges courantes)
Honoraires de visite et de constitution de dossier à la charge du locataire : 356,11 euros
Dépôt de garantie : 1050 euros

Visite après pré-validation de votre dossier.

Les informations sur les risques auxquels ce bien est exposé sont disponibles sur le site Géorisques : www.georisques.gouv.fr

Caractéristiques

Honoraires de visite et constitution de dossier charge locataire
356,11 €
Dépôt de garantie
1 100,00 €
Charges locatives mensuelles
150,00 €
Type
appartement
État général
neuf
Environnement
urbain
Orientation
Est
Disponibilité
immédiate
Construction
2025
Surface habitable
40,67 m²
Étage
4
Floor count
4
Nb. chambres
1
Nb. salles d'eau
1
Nb. parking
1
Nb. balcons
1
Types de cuisine
aménagée
Chauffages
gaz
Chauffage collectif
Parking privé
Sous-sol
Ascenseur
Tout à l'égout
Dernier étage
Modalités charges du locataire
Prévisionnelles mensuelles avec régularisation annuelle

Télécharger le barème des honoraires

Tous les outils pour vos projets immobiliers

Tous les outils pour vos projets immobiliers

Découvrez Mon CID,

mon compagnon immobilier digital

Accès à toutes les ventes immobilières,

boussole à réalité augmentée,

tester le débit de votre futur achat,

calculatrice de mensualité, etc.

Application mobile disponible sur

En savoir plus

Performance énergétique

logement extrêmement performant
bâtiment performantpassoire énergétique
  • A< 70
  • B70 - 110
  • C110 - 180101kWh/m².an20 *kg CO2/m².an
  • D180 - 250
  • E250 - 330
  • F330 - 420
  • G> 420
logement extrêmement peu performant

* Dont émissions de gaz à effet de serre

peu d'émissions de CO2
  • A< 6
  • B6 - 11
  • C11 - 3020kg CO2/m².an
  • D30 - 50
  • E50 - 70
  • F70 - 100
  • G> 100
émissions de CO2 très importantes

Estimation des dépenses annuelles d'énergie pour un usage standard

entre 468 € et 633 € / an *

* Prix moyens des énergies indexés pour l'année 2023 (abonnement compris).

Cette annonce vous intéresse ?

Prenez contact avec Isabelle Benhamou (EI)

Isabelle Benhamou

Agent commercial en immobilier immatriculé au RSAC de CRETEIL sous le n°831583612


ou

Autres annonces à découvrir...

Logo LF immo

Retrouvez les annonces immobilières de notre réseau d'agents ou devenez vous-même négociateur.

Coordonnées du siège

LF immo
2 rue du Chemin de Fer
La Wantzenau, 67610 (France)
+33 3 88 62 97 69
contact@bylf.fr

Chaque agent du réseau LF immo est juridiquement et financièrement indépendant.

Filtres SVG
Logo LF immo Logo LF immo LF immo

En poursuivant votre navigation sur ce site, vous acceptez l'utilisation de Cookies pour mesurer l'audience de notre site.

En savoir plus