Description

175 m²
1274 m²
7 pièces
5 chambres
2 garages
2 sdb

Nouveauté en exclusivité LF immo, à quelques minutes de Cernay, sur les hauteurs de Wattwiller !

Dans une commune prisée pour sa qualité de vie, Nathalie Simonin, votre agent de proximité, vous invite à venir visiter cette propriété singulière, parfaitement entretenue, implantée sur un terrain paysagé de plus de 12 ares.

Dès les premiers instants, cette belle villa d’architecte édifiée en 1973, d’environ 175 m² habitables, séduit par son atmosphère chaleureuse, ses volumes généreux et son authenticité. Pensée pour une vie de famille confortable, elle offre un cadre de vie serein tout en restant proche des commodités essentielles.

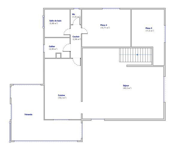
Au rez-de-chaussée, l’entrée avec placards muraux mène à l'espace nuit autour du kachelofe, comprenant trois chambres, une salle d’eau avec WC, une grande cave, une cave à vins en terre battue et un garage attenant.

Mais c’est à l’étage que le charme opère pleinement…

Découvrez une pièce de vie exceptionnelle de plus de 45 m², sublimée par de magnifiques poutres apparentes, une hauteur sous plafond de 2,90 m et de larges ouvertures laissant généreusement entrer la lumière naturelle. Cet espace unique, à la fois chaleureux et empreint de caractère, invite immédiatement à la convivialité. La cheminée vient parfaire cette ambiance cosy et authentique. Une chambre attenante complète ce lieu. Dans le prolongement de la cuisine, une véranda baignée de lumière, équipée de larges baies vitrées coulissantes en aluminium, offre un espace de vie supplémentaire particulièrement appréciable à l’arrivée des beaux jours. Une chambre parentale, une deuxième salle d’eau et un WC indépendant se trouvent également à ce niveau. De nombreux rangements intégrés, un cellier et un grenier viennent parfaire l’ensemble.

À l’extérieur, tout est pensé pour le confort et la praticité : une vaste aire de stationnement à l’avant, une annexe avec un second garage et un espace de stockage, ainsi qu’un beau jardin propice à la détente ou aux moments conviviaux. Un abri en bois vient compléter ce cadre soigné et clôturé.

Les prestations techniques sont complètes : chauffage performant avec pompes à chaleur air/air réversible, cheminée et poêle en faïence ; eau chaude produite par panneaux solaires avec ballon neuf de 296 L. Fenêtres en aluminium double vitrage, volets PVC dont deux motorisés récents, VMC et fibre installée. Ravalement de façade en 2004, couverture et panneaux solaires remplacés en 2018. D'importants travaux d'aménagement extérieurs ont également été réalisés en 2015 et l'assainissement est conforme.

Située dans une rue paisible, cette propriété bénéficie d’un emplacement recherché, à proximité immédiate du massif des Vosges, réputé pour ses paysages et ses sentiers de randonnée. Vous profiterez d’un environnement privilégié, entre nature et accessibilité, à seulement 10 minutes de Cernay et Thann, avec un accès rapide à l’A36 vers Mulhouse et Colmar.

Cette maison aux multiples possibilités conviendra aussi bien à une grande famille qu’à un projet bi-famille. Ses volumes et son potentiel vous permettront de créer un lieu de vie à votre image.

Pour plus d’informations ou organiser une visite, contactez Nathalie Simonin, conseillère indépendante en immobilier à Aspach-le-Bas, disponible 7 jours sur 7 au 06.29.63.73.97 ou par e-mail à nathalie.simonin@lafourmi-immo.com.

Les propriétaires souhaitent préserver leur tranquillité et vous remercient de bien vouloir contacter exclusivement leur agent.

Les informations sur les risques auxquels ce bien est exposé sont disponibles sur le site Géorisques : www.georisques.gouv.fr

Caractéristiques

Honoraires charge
mandant
Type
maison
État général
bon
Environnement
village
Disponibilité
à l'acte
Construction
1973
Surface totale
176 m²
Surface terrain
1274 m²
Surface habitable
175 m²
Nb. chambres
5
Nb. salles de bains
2
Nb. cuisines
1
Nb. garages
2
Nb. parking
1
Types de cuisine
équipée
Chauffages
bois, électricité et pompe à chaleur air/air
Sous-sol
Cave
Cheminée
Tout à l'égout
Taxe foncière
1 400,00 €
Panneaux solaires

Télécharger le barème des honoraires

Localisation Wattwiller, 68700

Pour des raisons de confidentialité, la géolocalisation de ce bien a été dégradée.

Tous les outils pour vos projets immobiliers

Tous les outils pour vos projets immobiliers

Découvrez Mon CID,

mon compagnon immobilier digital

Accès à toutes les ventes immobilières,

boussole à réalité augmentée,

tester le débit de votre futur achat,

calculatrice de mensualité, etc.

Application mobile disponible sur

En savoir plus

Performance énergétique

logement extrêmement performant
bâtiment performantpassoire énergétique
  • A< 70
  • B70 - 110
  • C110 - 180
  • D180 - 250183kWh/m².an7 *kg CO2/m².an
  • E250 - 330
  • F330 - 420
  • G> 420
logement extrêmement peu performant

* Dont émissions de gaz à effet de serre

peu d'émissions de CO2
  • A< 6
  • B6 - 117kg CO2/m².an
  • C11 - 30
  • D30 - 50
  • E50 - 70
  • F70 - 100
  • G> 100
émissions de CO2 très importantes

Estimation des dépenses annuelles d'énergie pour un usage standard

entre 2 550 € et 3 530 € / an *

* Prix moyens des énergies indexés pour l'année 2026 (abonnement compris).

Simulation de prêt

(10% du prix du bien)
%
(taux moyen hors assurance)

Montant estimé

1763 € / mois *

* Calculs effectués sur la base d'un prêt à taux fixe de 3,32% sur une durée de 25 ans avec un apport de 10% et hors assurance. Le coût de l'assurance de prêt dépend du capital assuré, de votre âge, de la durée du prêt, du taux d'intérêt du prêt, de votre questionnaire de santé et/ou médical, et de votre profession. Les calculs et solutions indiqués ne revêtent aucun caractère contractuel et ne sont en aucun cas une offre de prêt. Seuls les banques et organismes de financement sont habilités à accorder un financement. Pour tout crédit immobilier, vous êtes protégés par un délai de réflexion de 10 jours. Aucun versement de quelque nature que ce soit ne peut être exigé d'un particulier avant l'obtention d'un ou de plusieurs prêts d'argent. L'achat est subordonné à l'obtention du prêt. S'il n'est pas obtenu, le vendeur doit rembourser les sommes versées. Un crédit vous engage et doit être remboursé. Vérifiez vos capacités de remboursement avant de vous engager.

Cette annonce vous intéresse ?

Prenez contact avec Nathalie Simonin (EI)

Nathalie Simonin

Agent commercial en immobilier immatriculé au RSAC de Mulhouse sous le n°818268344

Ventes Titan de platine 2023/2024
Ventes Titan de platine 2024/2025

ou

Autres annonces à découvrir...

Logo LF immo

Retrouvez les annonces immobilières de notre réseau d'agents ou devenez vous-même négociateur.

Coordonnées du siège

LF immo
2 rue du Chemin de Fer
La Wantzenau, 67610 (France)
+33 3 88 62 97 69
contact@bylf.fr

Chaque agent du réseau LF immo est juridiquement et financièrement indépendant.

Filtres SVG
Logo LF immo Logo LF immo LF immo

En poursuivant votre navigation sur ce site, vous acceptez l'utilisation de Cookies pour mesurer l'audience de notre site.

En savoir plus