Description

130 m²
100 m²
4 pièces
3 chambres
1 sdb

Située au cœur du charmant village de Montréal, cette maison de village d’environ 130 m² habitables offre de beaux volumes, un jardin plat et une agréable vue sur les Pyrénées, le tout avec stationnement facile à proximité.

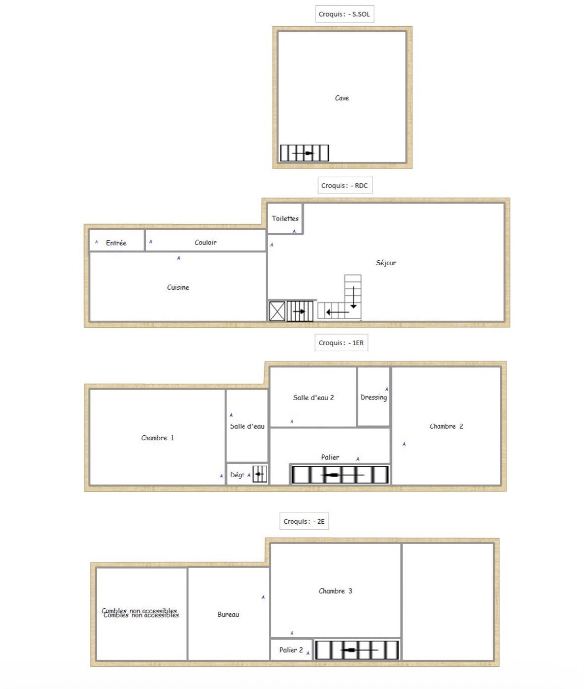
Au rez-de-chaussée, vous découvrirez une entrée avec carreaux de ciment, une cuisine indépendante de 12 m² avec arrière-cuisine, un vaste salon / salle à manger de près de 39 m², chaleureux et lumineux, ainsi qu’un WC indépendant.

Le 1er étage se compose de deux grandes chambres :

* Une première chambre de 23,6 m² avec placard,
* Une seconde chambre de 25,8 m² disposant de sa salle d’eau avec WC.
* Une salle d’eau indépendante complète ce niveau.

Au 2ème étage, une chambre mansardée d’environ 18 m² au sol offre un espace supplémentaire idéal pour un bureau, une chambre d’amis ou un espace détente.

En rez-de-jardin, une cave de 25 m² permet du rangement ou un espace atelier.

À l’extérieur, vous profiterez d’un terrain plat d’environ 100 m², agréable et facile à entretenir.

La maison a bénéficié d’une rénovation en 2002, incluant électricité, plomberie, fenêtres double vitrage, sols et chauffage. Elle est équipée d’une cheminée avec insert, offrant confort et économies d’énergie. La toiture a été refaite en 2001.

Travaux de rafraîchissement à prévoir au niveau de la cuisine et des salles d’eau, permettant de personnaliser le bien selon vos goûts.

Une maison idéale en résidence principale ou secondaire, alliant volumes, cachet et situation agréable dans un secteur recherché de l’Aude.

Les informations sur les risques auxquels ce bien est exposé sont disponibles sur le site Géorisques : www.georisques.gouv.fr

Caractéristiques

Honoraires charge
mandant
Type
maison
État général
à rafraîchir
Environnement
village
Disponibilité
immédiate
Surface terrain
100 m²
Surface habitable
130 m²
Nb. chambres
3
Nb. salles de bains
1
Nb. salles d'eau
1
Nb. cuisines
1
Nb. balcons
1
Chauffages
bois et gaz
Sous-sol
Cheminée
Tout à l'égout
Taxe foncière
800,00 €

Télécharger le barème des honoraires

Localisation Montreal, 11290

Tous les outils pour vos projets immobiliers

Tous les outils pour vos projets immobiliers

Découvrez Mon CID,

mon compagnon immobilier digital

Accès à toutes les ventes immobilières,

boussole à réalité augmentée,

tester le débit de votre futur achat,

calculatrice de mensualité, etc.

Application mobile disponible sur

En savoir plus

Plans

Détail des pièces

cave 25 m²

couloir 7,1 m²
cuisine 12 m²
arrière cuisine 5,8 m²
pièce de vie 39 m²
WC 1,1 m²

couloir 5,2 m²
salle d'eau 7 m²
ch1 24 m²
ch2 26 m²

bureau 18 m²

Performance énergétique

logement extrêmement performant
bâtiment performantpassoire énergétique
  • A< 70
  • B70 - 110
  • C110 - 18095kWh/m².an15 *kg CO2/m².an
  • D180 - 250
  • E250 - 330
  • F330 - 420
  • G> 420
logement extrêmement peu performant

* Dont émissions de gaz à effet de serre

peu d'émissions de CO2
  • A< 6
  • B6 - 11
  • C11 - 3015kg CO2/m².an
  • D30 - 50
  • E50 - 70
  • F70 - 100
  • G> 100
émissions de CO2 très importantes

Estimation des dépenses annuelles d'énergie pour un usage standard

entre 1 100 € et 1 540 € / an *

* Prix moyens des énergies indexés pour l'année 2022 (abonnement compris).

Simulation de prêt

(10% du prix du bien)
%
(taux moyen hors assurance)

Montant estimé

747 € / mois *

* Calculs effectués sur la base d'un prêt à taux fixe de 3,32% sur une durée de 25 ans avec un apport de 10% et hors assurance. Le coût de l'assurance de prêt dépend du capital assuré, de votre âge, de la durée du prêt, du taux d'intérêt du prêt, de votre questionnaire de santé et/ou médical, et de votre profession. Les calculs et solutions indiqués ne revêtent aucun caractère contractuel et ne sont en aucun cas une offre de prêt. Seuls les banques et organismes de financement sont habilités à accorder un financement. Pour tout crédit immobilier, vous êtes protégés par un délai de réflexion de 10 jours. Aucun versement de quelque nature que ce soit ne peut être exigé d'un particulier avant l'obtention d'un ou de plusieurs prêts d'argent. L'achat est subordonné à l'obtention du prêt. S'il n'est pas obtenu, le vendeur doit rembourser les sommes versées. Un crédit vous engage et doit être remboursé. Vérifiez vos capacités de remboursement avant de vous engager.

Cette annonce vous intéresse ?

Prenez contact avec Gaëlle Maffre (EI)

Gaëlle Maffre

Agent commercial en immobilier immatriculé au RSAC de CARCASSONNE sous le n°889442570


ou

Autres annonces à découvrir...

Logo LF immo

Retrouvez les annonces immobilières de notre réseau d'agents ou devenez vous-même négociateur.

Coordonnées du siège

LF immo
2 rue du Chemin de Fer
La Wantzenau, 67610 (France)
+33 3 88 62 97 69
contact@bylf.fr

Chaque agent du réseau LF immo est juridiquement et financièrement indépendant.

Filtres SVG
Logo LF immo Logo LF immo LF immo

En poursuivant votre navigation sur ce site, vous acceptez l'utilisation de Cookies pour mesurer l'audience de notre site.

En savoir plus