Description

61,82 m²
3 pièces
2 chambres
1 garage
1 sdb

Exclusivité LFImmo,
Idéal jeune couple ou maman solo !
Dans le joli village de Saint Symphorien d'Ozon, découvrez ce duplex chaleureux et confortable, idéal pour une vie paisible en famille. Niché au deuxième étage d’une copropriété bien entretenue, ce logement offre un cadre de vie agréable avec de faibles charges, dans un environnement sécurisé.

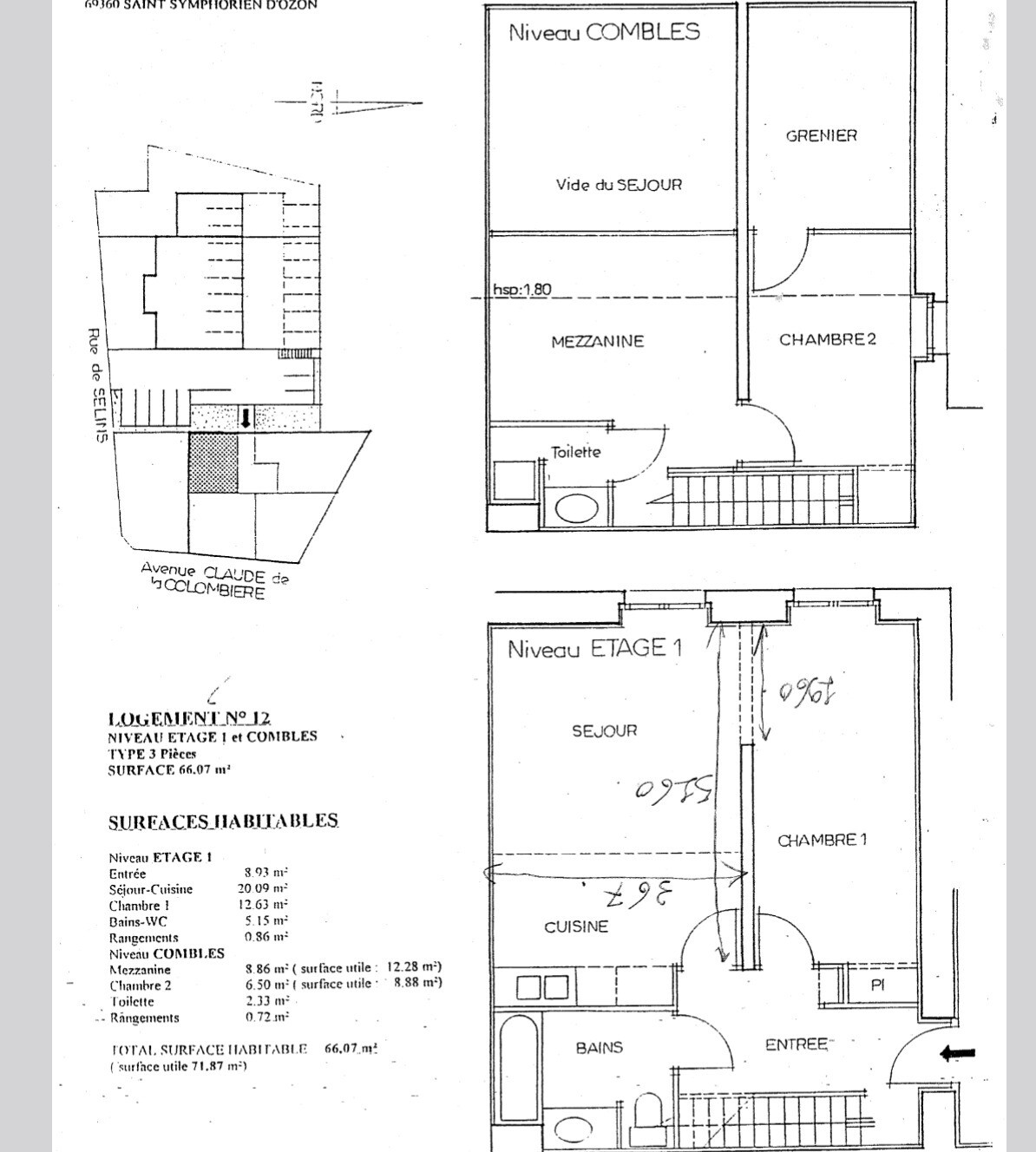
Ce duplex de 61,82 m² habitables, pour une surface totale de 73,5 m², se distingue par son agencement fonctionnel et lumineux. Construit en 1995, il présente un état général bon, prêt à accueillir ses nouveaux occupants sans travaux importants. La copropriété, composée de 28 lots, bénéficie d’un cadre calme et sécurisé, parfait pour profiter pleinement de la vie de village.

À l’intérieur, vous trouverez trois pièces bien distribuées, comprenant deux chambres confortables, une salle de bain et une salle d’eau à l'étage, offrant ainsi tout le confort nécessaire pour une famille ou un couple souhaitant un espace supplémentaire. La cuisine équipée s’intègre harmonieusement à l’espace de vie, invitant à partager des moments conviviaux. Le séjour lumineux, est un véritable cocon où il fait bon se retrouver.

Ce bien dispose également d’une cave, d’un garage privatif de 23 m² et d’une place de parking, des atouts précieux pour faciliter votre quotidien. Le chauffage électrique assure une température agréable tout au long de l’année. La proximité des transports en commun TCL ajoute un avantage supplémentaire, facilitant vos déplacements.
Commerces à proximité !

Ce duplex vous attend pour écrire une nouvelle page de votre vie dans un cadre serein et convivial. N’hésitez pas à venir le découvrir et vous laisser séduire par son atmosphère cosy et son potentiel. Une belle opportunité à saisir rapidement.

Les informations sur les risques auxquels ce bien est exposé sont disponibles sur le site Géorisques : www.georisques.gouv.fr

Caractéristiques

Honoraires charge
mandant
Type
appartement
État général
très bon
Environnement
village
Orientation
Ouest
Disponibilité
à l'acte
Construction
1995
Surface totale
73,5 m²
Surface habitable
61,82 m²
Étage
2
Floor count
2
Nb. chambres
2
Nb. salles de bains
1
Nb. salles d'eau
1
Nb. cuisines
1
Nb. garages
1
Types de cuisine
équipée
Chauffages
électricité
Parking privé
Cave
Tout à l'égout
Bien soumis au statut de la copropriété
Procédure en cours
aucune
Charges budget prévisionnel annuel
575,00 €
Nb. de logements
8
Nb. de lots
28
Taxe foncière
950,00 €

Télécharger le barème des honoraires

Localisation Saint Symphorien D'Ozon, 69360

Pour des raisons de confidentialité, la géolocalisation de ce bien a été dégradée.

Tous les outils pour vos projets immobiliers

Tous les outils pour vos projets immobiliers

Découvrez Mon CID,

mon compagnon immobilier digital

Accès à toutes les ventes immobilières,

boussole à réalité augmentée,

tester le débit de votre futur achat,

calculatrice de mensualité, etc.

Application mobile disponible sur

En savoir plus

Plans

Performance énergétique

logement extrêmement performant
bâtiment performantpassoire énergétique
  • A< 70
  • B70 - 110
  • C110 - 180
  • D180 - 250217kWh/m².an8 *kg CO2/m².an
  • E250 - 330
  • F330 - 420
  • G> 420
logement extrêmement peu performant

* Dont émissions de gaz à effet de serre

peu d'émissions de CO2
  • A< 6
  • B6 - 118kg CO2/m².an
  • C11 - 30
  • D30 - 50
  • E50 - 70
  • F70 - 100
  • G> 100
émissions de CO2 très importantes

Estimation des dépenses annuelles d'énergie pour un usage standard

entre 1 480 € et 2 060 € / an *

* Prix moyens des énergies indexés pour l'année 2023 (abonnement compris).

Simulation de prêt

(10% du prix du bien)
%
(taux moyen hors assurance)

Montant estimé

1046 € / mois *

* Calculs effectués sur la base d'un prêt à taux fixe de 3,32% sur une durée de 25 ans avec un apport de 10% et hors assurance. Le coût de l'assurance de prêt dépend du capital assuré, de votre âge, de la durée du prêt, du taux d'intérêt du prêt, de votre questionnaire de santé et/ou médical, et de votre profession. Les calculs et solutions indiqués ne revêtent aucun caractère contractuel et ne sont en aucun cas une offre de prêt. Seuls les banques et organismes de financement sont habilités à accorder un financement. Pour tout crédit immobilier, vous êtes protégés par un délai de réflexion de 10 jours. Aucun versement de quelque nature que ce soit ne peut être exigé d'un particulier avant l'obtention d'un ou de plusieurs prêts d'argent. L'achat est subordonné à l'obtention du prêt. S'il n'est pas obtenu, le vendeur doit rembourser les sommes versées. Un crédit vous engage et doit être remboursé. Vérifiez vos capacités de remboursement avant de vous engager.

Cette annonce vous intéresse ?

Prenez contact avec Pascale Vartanian (EI)

Pascale Vartanian

Agent commercial en immobilier immatriculé au RSAC de Lyon sous le n°507583599

Ventes Titan de bronze 2023/2024

ou

Autres annonces à découvrir...

Logo LF immo

Retrouvez les annonces immobilières de notre réseau d'agents ou devenez vous-même négociateur.

Coordonnées du siège

LF immo
2 rue du Chemin de Fer
La Wantzenau, 67610 (France)
+33 3 88 62 97 69
contact@bylf.fr

Chaque agent du réseau LF immo est juridiquement et financièrement indépendant.

Filtres SVG
Logo LF immo Logo LF immo LF immo

En poursuivant votre navigation sur ce site, vous acceptez l'utilisation de Cookies pour mesurer l'audience de notre site.

En savoir plus