Description

160 m²
12 pièces
6 chambres

A Bédarieux, Samir Omais vous présente une opportunité à saisir pour cet ensemble immobilier composé de :

- Au rdc un local commercial de 84 m² actuellement loué 280 euros (revenu immédiat),
- Et d’une partie habitation sur 3 niveaux développant 160 m² habitables + grenier de 57 m² avec beau volume.

Situé dans un environnement pratique, à proximité immédiate des commerces, services et transports, découvrez cet immeuble offrant de nombreuses possibilités d’aménagement.

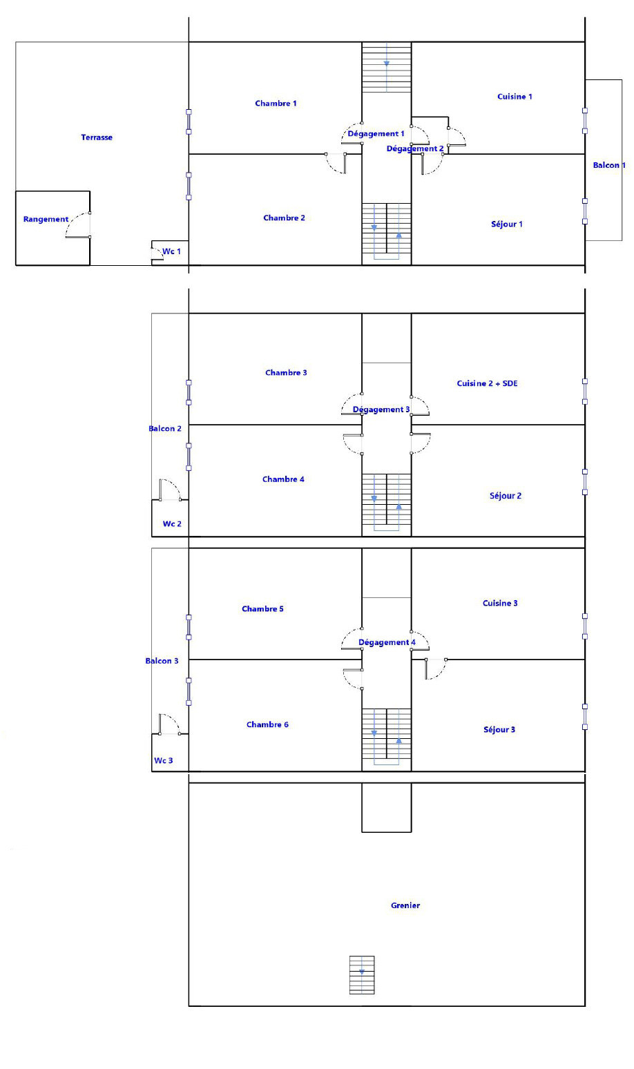
Au 1er étage, vous trouverez :

un espace composé d’une cuisine et d’un séjour donnant sur un balcon exposé ouest
deux pièces type chambres avec accès à une terrasse couverte exposée Est, comprenant un WC ainsi qu’une pièce annexe d’environ 7 m² (stockage / cave)

Au 2ᵉ étage :

un ensemble avec cuisine et salle d’eau intégrée
une pièce attenante pouvant faire office de chambre ou séjour
deux pièces type chambres
un wc

Au 3ᵉ étage :

une distribution comparable avec cuisine et pièce de vie côté ouest
deux chambres côté est avec accès à un balcon et un WC

Les combles, accessibles par un escalier en bois, offrent une grande surface exploitable avec une belle hauteur sous plafond (jusqu’à environ 3 mètres).

Les + du bien :
Double exposition est / ouest
Extérieurs à chaque niveau (balcons / terrasse)
Volumes intéressants et nombreuses possibilités de réagencement
Proximité immédiate des commerces, médiathèque, services et transports (bus au pied de l’immeuble)
Accès rapide à un axe commerçant dynamique

➡️ Rénovation complète à prévoir


Les informations sur les risques auxquels ce bien est exposé sont disponibles sur le site Géorisques : www.georisques.gouv.fr

Caractéristiques

Honoraires charge
mandant
Type
ensemble immobilier
État général
à rénover entièrement
Environnement
centre ville
Disponibilité
à l'acte
Floor count
3
Terrasse
Tout à l'égout
Taxe foncière
2 637,00 €

Télécharger le barème des honoraires

Localisation Bedarieux, 34600

Pour des raisons de confidentialité, la géolocalisation de ce bien a été dégradée.

Tous les outils pour vos projets immobiliers

Tous les outils pour vos projets immobiliers

Découvrez Mon CID,

mon compagnon immobilier digital

Accès à toutes les ventes immobilières,

boussole à réalité augmentée,

tester le débit de votre futur achat,

calculatrice de mensualité, etc.

Application mobile disponible sur

En savoir plus

Plans

Performance énergétique

logement extrêmement performant
bâtiment performantpassoire énergétique
  • A< 70
  • B70 - 110
  • C110 - 180
  • D180 - 250181kWh/m².an40 *kg CO2/m².an
  • E250 - 330
  • F330 - 420
  • G> 420
logement extrêmement peu performant

* Dont émissions de gaz à effet de serre

peu d'émissions de CO2
  • A< 6
  • B6 - 11
  • C11 - 30
  • D30 - 5040kg CO2/m².an
  • E50 - 70
  • F70 - 100
  • G> 100
émissions de CO2 très importantes

Estimation des dépenses annuelles d'énergie pour un usage standard

entre 2 540 € et 3 490 € / an *

* Prix moyens des énergies indexés pour l'année 2023 (abonnement compris).

Simulation de prêt

(10% du prix du bien)
%
(taux moyen hors assurance)

Montant estimé

351 € / mois *

* Calculs effectués sur la base d'un prêt à taux fixe de 3,37% sur une durée de 25 ans avec un apport de 10% et hors assurance. Le coût de l'assurance de prêt dépend du capital assuré, de votre âge, de la durée du prêt, du taux d'intérêt du prêt, de votre questionnaire de santé et/ou médical, et de votre profession. Les calculs et solutions indiqués ne revêtent aucun caractère contractuel et ne sont en aucun cas une offre de prêt. Seuls les banques et organismes de financement sont habilités à accorder un financement. Pour tout crédit immobilier, vous êtes protégés par un délai de réflexion de 10 jours. Aucun versement de quelque nature que ce soit ne peut être exigé d'un particulier avant l'obtention d'un ou de plusieurs prêts d'argent. L'achat est subordonné à l'obtention du prêt. S'il n'est pas obtenu, le vendeur doit rembourser les sommes versées. Un crédit vous engage et doit être remboursé. Vérifiez vos capacités de remboursement avant de vous engager.

Cette annonce vous intéresse ?

Prenez contact avec Samir Omais (EI)

Samir Omais

Agent commercial en immobilier immatriculé au RSAC de Montpellier sous le n°921295887

Ventes Titan de bronze 2024/2025

ou

Autres annonces à découvrir...

Logo LF immo

Retrouvez les annonces immobilières de notre réseau d'agents ou devenez vous-même négociateur.

Coordonnées du siège

LF immo
2 rue du Chemin de Fer
La Wantzenau, 67610 (France)
+33 3 88 62 97 69
contact@bylf.fr

Chaque agent du réseau LF immo est juridiquement et financièrement indépendant.

Filtres SVG
Logo LF immo Logo LF immo LF immo

En poursuivant votre navigation sur ce site, vous acceptez l'utilisation de Cookies pour mesurer l'audience de notre site.

En savoir plus