Description

168 m²
223 m²
5 pièces
4 chambres
1 garage
1 sdb

Situé quartier Bordeaux- Bastide, cette maison de ville pleine de charme vous invite à imaginer un cocon familial où confort et convivialité se conjuguent au quotidien. Implantée sur un terrain de 223 m², cette demeure de 168 m² habitable offre un cadre de vie chaleureux à deux pas de l’effervescence urbaine.

Construite en 1925 et rénovée en 1997, cette maison à rafraîchir conserve toute son authenticité tout en proposant un bel espace de vie. Dès l’entrée, vous serez séduit par la distribution fonctionnelle des pièces qui s’adaptent aisément à une vie de famille. Avec ses cinq pièces dont quatre chambres, elle offre un équilibre parfait entre espaces communs et intimes.

Le séjour s’ouvre sur la cuisine équipée: (hors gazinière et lave-vaisselle) et sur une terrasse, idéale pour profiter des beaux jours en toute tranquillité. Une salle de bain et deux wc complètent l’ensemble, apportant confort et praticité au quotidien.

Le chauffage par pompe à chaleur air/eau assure une ambiance agréable en toute saison. Un garage vient parfaire ce bien, offrant un espace de rangement supplémentaire.

Cette maison de ville, est une belle opportunité d'acquérir un bien à proximité du centre de Bordeaux tout en bénéficiant d’un cadre de vie paisible et familial.

Ligne de bus 31 et 24 à proximité de la maison et le tram A arrêt Thiers-Benauge (10mn à pieds).

Venez la découvrir et laissez-vous séduire par son potentiel et son atmosphère accueillante.

Les informations sur les risques auxquels ce bien est exposé sont disponibles sur le site Géorisques : www.georisques.gouv.fr

Caractéristiques

Prix hors honoraires d'agence
570 000,00 €
Honoraires charge
acquéreur
Pourcentage à la charge de l'acquéreur
2,63%
Type
maison de ville
État général
à rafraîchir
Environnement
centre ville
Disponibilité
à l'acte
Construction
1925
Rénovation
1997
Surface terrain
223 m²
Surface habitable
168 m²
Nb. chambres
4
Nb. salles de bains
1
Nb. cuisines
1
Nb. garages
1
Types de cuisine
équipée
Chauffages
pompe à chaleur air/eau
Terrasse
Tout à l'égout
Taxe foncière
2 040,00 €

Télécharger le barème des honoraires

Localisation Bordeaux, 33100

Tous les outils pour vos projets immobiliers

Tous les outils pour vos projets immobiliers

Découvrez Mon CID,

mon compagnon immobilier digital

Accès à toutes les ventes immobilières,

boussole à réalité augmentée,

tester le débit de votre futur achat,

calculatrice de mensualité, etc.

Application mobile disponible sur

En savoir plus

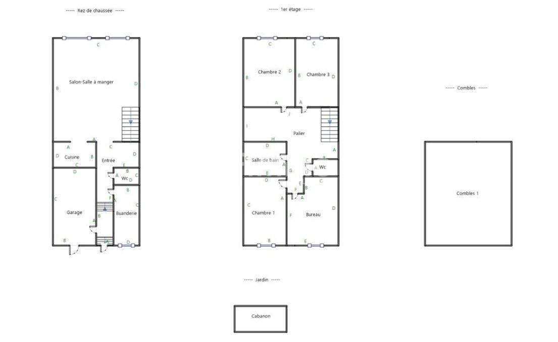
Plans

Détail des pièces

salle à manger / salon 46 m²
cuisine 8 m²
wc
buanderie 6 m²
garage 20 m²

chambre 13 m²
chambre 16 m²
chambre 17 m²
chambre 17 m²
salle de bain 10 m²
wc

Performance énergétique

logement extrêmement performant
bâtiment performantpassoire énergétique
  • A< 70
  • B70 - 11095kWh/m².an3 *kg CO2/m².an
  • C110 - 180
  • D180 - 250
  • E250 - 330
  • F330 - 420
  • G> 420
logement extrêmement peu performant

* Dont émissions de gaz à effet de serre

peu d'émissions de CO2
  • A< 63kg CO2/m².an
  • B6 - 11
  • C11 - 30
  • D30 - 50
  • E50 - 70
  • F70 - 100
  • G> 100
émissions de CO2 très importantes

Estimation des dépenses annuelles d'énergie pour un usage standard

entre 1 220 € et 1 710 € / an *

* Prix moyens des énergies indexés pour l'année 2023 (abonnement compris).

Simulation de prêt

(10% du prix du bien)
%
(taux moyen hors assurance)

Montant estimé

2599 € / mois *

* Calculs effectués sur la base d'un prêt à taux fixe de 3,37% sur une durée de 25 ans avec un apport de 10% et hors assurance. Le coût de l'assurance de prêt dépend du capital assuré, de votre âge, de la durée du prêt, du taux d'intérêt du prêt, de votre questionnaire de santé et/ou médical, et de votre profession. Les calculs et solutions indiqués ne revêtent aucun caractère contractuel et ne sont en aucun cas une offre de prêt. Seuls les banques et organismes de financement sont habilités à accorder un financement. Pour tout crédit immobilier, vous êtes protégés par un délai de réflexion de 10 jours. Aucun versement de quelque nature que ce soit ne peut être exigé d'un particulier avant l'obtention d'un ou de plusieurs prêts d'argent. L'achat est subordonné à l'obtention du prêt. S'il n'est pas obtenu, le vendeur doit rembourser les sommes versées. Un crédit vous engage et doit être remboursé. Vérifiez vos capacités de remboursement avant de vous engager.

Cette annonce vous intéresse ?

Prenez contact avec Aurélia Huet (EI)

Aurélia Huet

Agent commercial en immobilier immatriculé au RSAC de BORDEAUX sous le n°911596260


ou

Autres annonces à découvrir...

Logo LF immo

Retrouvez les annonces immobilières de notre réseau d'agents ou devenez vous-même négociateur.

Coordonnées du siège

LF immo
2 rue du Chemin de Fer
La Wantzenau, 67610 (France)
+33 3 88 62 97 69
contact@bylf.fr

Chaque agent du réseau LF immo est juridiquement et financièrement indépendant.

Filtres SVG
Logo LF immo Logo LF immo LF immo

En poursuivant votre navigation sur ce site, vous acceptez l'utilisation de Cookies pour mesurer l'audience de notre site.

En savoir plus