Description

192,12 m²
580 m²
7 pièces
6 chambres
2 garages
piscine

En exclusivité à Sermersheim, découvrez cette maison familiale de 192m² sur un terrain clos, arboré de 5,80 ares et sa piscine.
Construite en 1977, la maison séduit dès l’entrée par ses volumes harmonieux et sa belle luminosité naturelle.

- Le plain-pied surélevé offre une magnifique pièce à vivre qui se distingue par son volume généreux de 61m² comprenant une cuisine américaine entièrement aménagée et équipée, ouverte sur le salon-séjour.
Le poêle à granulés installé dans cet espace contribue à une ambiance chaleureuse et économique. Ajoutons 2 chambres de 13 et 16m², 1 salle d'eau avec douche à l'italienne et toilettes séparés

- Montons à l'étage pour apprécier un dégagement aménageable avec ses placards, 3 chambres de 14m² chacune, 1 salle de bain et 1 suite parentale comportant une chambre de 16m² , son dressing et sa salle d'eau privative avec toilettes séparées.

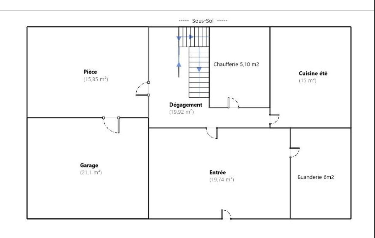
- Le sous-sol, non enterré, propose 1 double garage de 21 m², 2 pièces de 16 et 20m² (pouvant servir de salle de jeux, bureau, stockage ou autres), 1 buanderie, 1 local technique et des toilettes séparés.
À noter, toutes les fenêtres de ce niveau sont sécurisées. Point d'intérêt, une cuisine d'été qui facilite l’organisation de repas en plein air, sortant directement sur une terrasse abritée, orientée côté piscine miroir ( à débordement ) chauffée et valorisée d'un système de nage à contre-courant agrémenté d'une cascade.
Le tout pour passer d'excellents moments en famille ou entre amis !

- À l’extérieur, un portail motorisé sécurise plusieurs places de parking privatives dans la cour ainsi que la partie détente à l'arrière.

Le chauffage général de la bâtisse est assuré par une pompe à chaleur air-eau.

Ce bien, disponible immédiatement à l’acte, représente une opportunité rare sur le marché local, alliant espace et potentiel, luminosité et équipements adaptés à une vie familiale paisible.

Pleine de charme, cette demeure est idéale pour une famille en quête de confort et de fonctionnalités. Située dans une impasse, très facile d'accès ce qui offre un cadre de vie paisible, spacieux et lumineux.

De belles perspectives pour réaliser votre projet de vie.

Plans envoyés sur demande.

Vous êtes invités à venir découvrir ce bien à Sermersheim en contactant Catherine

Les informations sur les risques auxquels ce bien est exposé sont disponibles sur le site Géorisques : www.georisques.gouv.fr

Caractéristiques

Honoraires charge
mandant
Type
maison
État général
bon
Environnement
village
Disponibilité
à l'acte
Construction
1977
Surface totale
213,06 m²
Surface terrain
580 m²
Surface habitable
192,12 m²
Nb. chambres
6
Nb. salles de bains
1
Nb. salles d'eau
2
Nb. cuisines
1
Nb. garages
2
Nb. parking
4
Types de cuisine
équipée, aménagée et américaine
Chauffages
poêle à granulés et pompe à chaleur air/eau
Parking privé
Sous-sol
Cave
Terrasse
Piscine
Cheminée
Tout à l'égout
Taxe foncière
1 214,00 €

Télécharger le barème des honoraires

Localisation Sermersheim, 67230

Pour des raisons de confidentialité, la géolocalisation de ce bien a été dégradée.

Tous les outils pour vos projets immobiliers

Tous les outils pour vos projets immobiliers

Découvrez Mon CID,

mon compagnon immobilier digital

Accès à toutes les ventes immobilières,

boussole à réalité augmentée,

tester le débit de votre futur achat,

calculatrice de mensualité, etc.

Application mobile disponible sur

En savoir plus

Plans

Performance énergétique

logement extrêmement performant
bâtiment performantpassoire énergétique
  • A< 70
  • B70 - 110
  • C110 - 180142kWh/m².an5 *kg CO2/m².an
  • D180 - 250
  • E250 - 330
  • F330 - 420
  • G> 420
logement extrêmement peu performant

* Dont émissions de gaz à effet de serre

peu d'émissions de CO2
  • A< 65kg CO2/m².an
  • B6 - 11
  • C11 - 30
  • D30 - 50
  • E50 - 70
  • F70 - 100
  • G> 100
émissions de CO2 très importantes

Estimation des dépenses annuelles d'énergie pour un usage standard

entre 2 200 € et 3 200 € / an *

* Prix moyens des énergies indexés pour l'année 2025 (abonnement compris).

Simulation de prêt

(10% du prix du bien)
%
(taux moyen hors assurance)

Montant estimé

1644 € / mois *

* Calculs effectués sur la base d'un prêt à taux fixe de 3,37% sur une durée de 25 ans avec un apport de 10% et hors assurance. Le coût de l'assurance de prêt dépend du capital assuré, de votre âge, de la durée du prêt, du taux d'intérêt du prêt, de votre questionnaire de santé et/ou médical, et de votre profession. Les calculs et solutions indiqués ne revêtent aucun caractère contractuel et ne sont en aucun cas une offre de prêt. Seuls les banques et organismes de financement sont habilités à accorder un financement. Pour tout crédit immobilier, vous êtes protégés par un délai de réflexion de 10 jours. Aucun versement de quelque nature que ce soit ne peut être exigé d'un particulier avant l'obtention d'un ou de plusieurs prêts d'argent. L'achat est subordonné à l'obtention du prêt. S'il n'est pas obtenu, le vendeur doit rembourser les sommes versées. Un crédit vous engage et doit être remboursé. Vérifiez vos capacités de remboursement avant de vous engager.

Cette annonce vous intéresse ?

Prenez contact avec Catherine Colard-Claudy (EI)

Catherine Colard-Claudy

Agent commercial en immobilier immatriculé au RSAC de Strasbourg sous le n°848313383

Ventes Titan de bronze 2023/2024

ou

Autres annonces à découvrir...

Logo LF immo

Retrouvez les annonces immobilières de notre réseau d'agents ou devenez vous-même négociateur.

Coordonnées du siège

LF immo
2 rue du Chemin de Fer
La Wantzenau, 67610 (France)
+33 3 88 62 97 69
contact@bylf.fr

Chaque agent du réseau LF immo est juridiquement et financièrement indépendant.

Filtres SVG
Logo LF immo Logo LF immo LF immo

En poursuivant votre navigation sur ce site, vous acceptez l'utilisation de Cookies pour mesurer l'audience de notre site.

En savoir plus