Description

62 m²
3 pièces
2 chambres
1 sdb

Situé en plein centre-ville de Carrière-Sous-Poissy, cet appartement de 62 m² en très bon état. Implanté au deuxième étage d’une résidence de standing avec ascenseur, ce bien bénéficie d’une orientation sud offrant une vue dégagée sur la Seine.

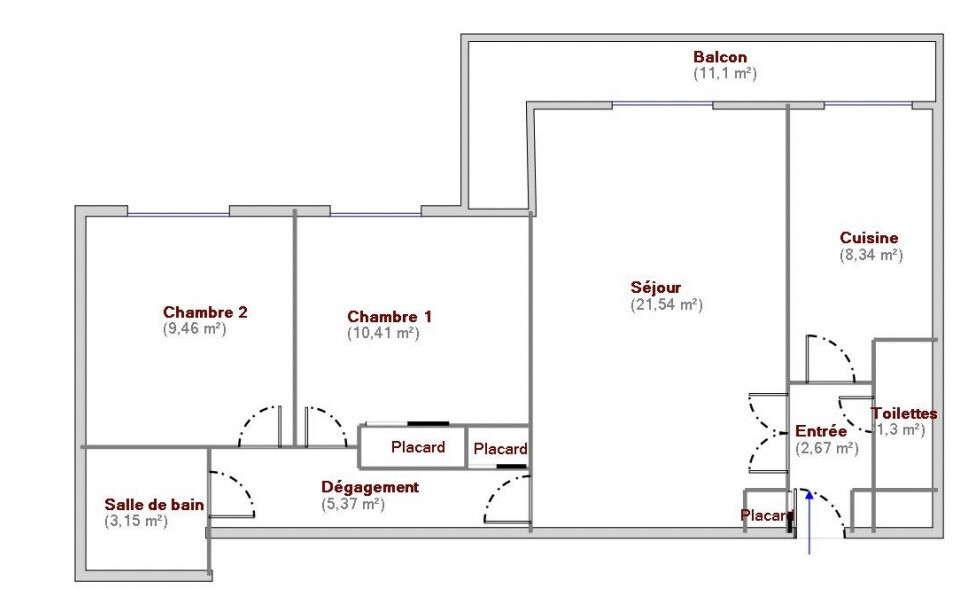
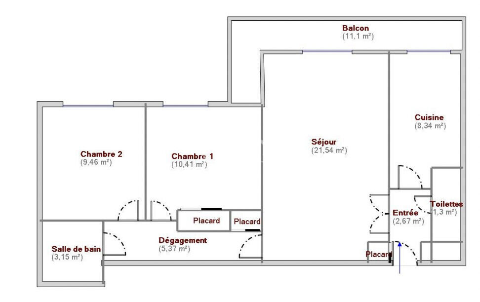
L’appartement se compose de trois pièces principales, dont deux chambres avec rangements, une salle de bain et un WC séparé. La pièce de vie donnant sur le balcon bénéficie d’une luminosité naturelle grâce à son exposition sud avec vue sur la Seine.

Deux places de parking complètent ce bien, facilitant le stationnement en centre-ville.

Commerces et école (école primaire Les Bords de Seine) à pied. Transilien ligne J Mantes-la-Jolie - Paris St Lazare, RER A, Bus 6501 et 6551.

Les plus :
- ascensseur
- place de parking
- sans vis-à-vis
- double vitrage
- volet roulant
- exposition sud
- lumineux

Ce logement représente une opportunité intéressante pour un acquéreur recherchant un appartement bien situé, fonctionnel et en bon état. Pour toute demande d’information ou visite, me contacter au 07 89 36 36 11.

Les informations sur les risques auxquels ce bien est exposé sont disponibles sur le site Géorisques : www.georisques.gouv.fr

Caractéristiques

Honoraires charge
mandant
Type
appartement
État général
très bon
Environnement
centre ville
Orientation
Sud
Disponibilité
à l'acte
Construction
2005
Surface habitable
62 m²
Étage
2
Floor count
3
Nb. chambres
2
Nb. salles de bains
1
Nb. parking
2
Chauffages
électricité
Ascenseur
Tout à l'égout
Bien soumis au statut de la copropriété
Procédure en cours
aucune
Charges budget prévisionnel annuel
2 000,00 €
Nb. de logements
40
Nb. de lots
70
Taxe foncière
2 039,00 €

Télécharger le barème des honoraires

Tous les outils pour vos projets immobiliers

Tous les outils pour vos projets immobiliers

Découvrez Mon CID,

mon compagnon immobilier digital

Accès à toutes les ventes immobilières,

boussole à réalité augmentée,

tester le débit de votre futur achat,

calculatrice de mensualité, etc.

Application mobile disponible sur

En savoir plus

Plans

Performance énergétique

logement extrêmement performant
bâtiment performantpassoire énergétique
  • A< 70
  • B70 - 110
  • C110 - 180139kWh/m².an5 *kg CO2/m².an
  • D180 - 250
  • E250 - 330
  • F330 - 420
  • G> 420
logement extrêmement peu performant

* Dont émissions de gaz à effet de serre

peu d'émissions de CO2
  • A< 65kg CO2/m².an
  • B6 - 11
  • C11 - 30
  • D30 - 50
  • E50 - 70
  • F70 - 100
  • G> 100
émissions de CO2 très importantes

Estimation des dépenses annuelles d'énergie pour un usage standard

entre 850 € et 1 200 € / an *

* Prix moyens des énergies indexés pour l'année 2023 (abonnement compris).

Simulation de prêt

(10% du prix du bien)
%
(taux moyen hors assurance)

Montant estimé

1313 € / mois *

* Calculs effectués sur la base d'un prêt à taux fixe de 3,43% sur une durée de 25 ans avec un apport de 10% et hors assurance. Le coût de l'assurance de prêt dépend du capital assuré, de votre âge, de la durée du prêt, du taux d'intérêt du prêt, de votre questionnaire de santé et/ou médical, et de votre profession. Les calculs et solutions indiqués ne revêtent aucun caractère contractuel et ne sont en aucun cas une offre de prêt. Seuls les banques et organismes de financement sont habilités à accorder un financement. Pour tout crédit immobilier, vous êtes protégés par un délai de réflexion de 10 jours. Aucun versement de quelque nature que ce soit ne peut être exigé d'un particulier avant l'obtention d'un ou de plusieurs prêts d'argent. L'achat est subordonné à l'obtention du prêt. S'il n'est pas obtenu, le vendeur doit rembourser les sommes versées. Un crédit vous engage et doit être remboursé. Vérifiez vos capacités de remboursement avant de vous engager.

Cette annonce vous intéresse ?

Prenez contact avec Catherine Delaunay (EI)

Catherine Delaunay

Agent commercial en immobilier immatriculé au RSAC de versailles sous le n°819384579


ou

Autres annonces à découvrir...

Logo LF immo

Retrouvez les annonces immobilières de notre réseau d'agents ou devenez vous-même négociateur.

Coordonnées du siège

LF immo
2 rue du Chemin de Fer
La Wantzenau, 67610 (France)
+33 3 88 62 97 69
contact@bylf.fr

Chaque agent du réseau LF immo est juridiquement et financièrement indépendant.

Filtres SVG
Logo LF immo Logo LF immo LF immo

En poursuivant votre navigation sur ce site, vous acceptez l'utilisation de Cookies pour mesurer l'audience de notre site.

En savoir plus