Description

108 m²
200 m²
4 pièces
3 chambres
1 sdb

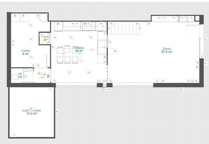
Située à Léognan, cette maison neuve de 108 m² habitables, construite en 2025 (ancienne grange rénovée avec des matériaux de grande qualité), est proposée à la vente dans un environnement résidentiel. Implantée sur un terrain de 200 m², elle offre un cadre de vie moderne et fonctionnel, adapté à un jeune couple ou une famille en quête d'un bien sans aucun travaux (fin des travaux pour la vente dont la cuisine).

Cette maison comprend quatre pièces principales, dont trois chambres, offrant un espace de vie confortable et bien agencé. La distribution intérieure privilégie la clarté et la fonctionnalité.

Le chauffage est assuré par une climatisation réversible, garantissant un confort thermique optimal tout au long de l’année. Un emplacement de parking est également disponible, facilitant le stationnement au sein de la propriété. L’orientation nord de la maison assure la fraîcheur l’été sans nuire à la luminosité grâce aux grandes baies vitrées.

A l'extérieur, vous profiterez d'une agréable terrasse et d'un espace de stockage clos.

Cette maison neuve, disponible immédiatement à l’acte, représente une opportunité intéressante pour un couple souhaitant s’installer dans un cadre résidentiel récent, avec des prestations contemporaines. Nous vous invitons à prendre contact pour organiser une visite et découvrir ce bien en détail.

Les informations sur les risques auxquels ce bien est exposé sont disponibles sur le site Géorisques : www.georisques.gouv.fr

Caractéristiques

Honoraires charge
mandant
Type
maison
État général
neuf
Environnement
zone Résidentielle
Orientation
Nord
Disponibilité
à l'acte
Construction
2025
Surface totale
118 m²
Surface terrain
200 m²
Surface habitable
108 m²
Nb. chambres
3
Nb. salles de bains
1
Nb. cuisines
1
Nb. parking
1
Types de cuisine
aménagée
Chauffages
clim réversible
Tout à l'égout

Télécharger le barème des honoraires

Localisation Léognan, 33850

Pour des raisons de confidentialité, la géolocalisation de ce bien a été dégradée.

Tous les outils pour vos projets immobiliers

Tous les outils pour vos projets immobiliers

Découvrez Mon CID,

mon compagnon immobilier digital

Accès à toutes les ventes immobilières,

boussole à réalité augmentée,

tester le débit de votre futur achat,

calculatrice de mensualité, etc.

Application mobile disponible sur

En savoir plus

Performance énergétique

logement extrêmement performant
bâtiment performantpassoire énergétique
  • A< 70
  • B70 - 11084kWh/m².an3 *kg CO2/m².an
  • C110 - 180
  • D180 - 250
  • E250 - 330
  • F330 - 420
  • G> 420
logement extrêmement peu performant

* Dont émissions de gaz à effet de serre

peu d'émissions de CO2
  • A< 63kg CO2/m².an
  • B6 - 11
  • C11 - 30
  • D30 - 50
  • E50 - 70
  • F70 - 100
  • G> 100
émissions de CO2 très importantes

Estimation des dépenses annuelles d'énergie pour un usage standard

entre 890 € et 1 250 € / an *

* Prix moyens des énergies indexés pour l'année 2023 (abonnement compris).

Simulation de prêt

(10% du prix du bien)
%
(taux moyen hors assurance)

Montant estimé

1755 € / mois *

* Calculs effectués sur la base d'un prêt à taux fixe de 3,37% sur une durée de 25 ans avec un apport de 10% et hors assurance. Le coût de l'assurance de prêt dépend du capital assuré, de votre âge, de la durée du prêt, du taux d'intérêt du prêt, de votre questionnaire de santé et/ou médical, et de votre profession. Les calculs et solutions indiqués ne revêtent aucun caractère contractuel et ne sont en aucun cas une offre de prêt. Seuls les banques et organismes de financement sont habilités à accorder un financement. Pour tout crédit immobilier, vous êtes protégés par un délai de réflexion de 10 jours. Aucun versement de quelque nature que ce soit ne peut être exigé d'un particulier avant l'obtention d'un ou de plusieurs prêts d'argent. L'achat est subordonné à l'obtention du prêt. S'il n'est pas obtenu, le vendeur doit rembourser les sommes versées. Un crédit vous engage et doit être remboursé. Vérifiez vos capacités de remboursement avant de vous engager.

Cette annonce vous intéresse ?

Prenez contact avec Alice Dupont (EI)

Alice Dupont

Agent commercial en immobilier immatriculé au RSAC de Bordeaux sous le n°909831596

Développeur d'équipe Titan de bronze 2023/2024

ou

Autres annonces à découvrir...

Logo LF immo

Retrouvez les annonces immobilières de notre réseau d'agents ou devenez vous-même négociateur.

Coordonnées du siège

LF immo
2 rue du Chemin de Fer
La Wantzenau, 67610 (France)
+33 3 88 62 97 69
contact@bylf.fr

Chaque agent du réseau LF immo est juridiquement et financièrement indépendant.

Filtres SVG
Logo LF immo Logo LF immo LF immo

En poursuivant votre navigation sur ce site, vous acceptez l'utilisation de Cookies pour mesurer l'audience de notre site.

En savoir plus