Description

228 m²
100 m²
8 pièces
4 chambres
1 garage
1 sdb

Situé au centre historique et commerçant de Saint-Médard-en-Jalles, cet ensemble immobilier conjugue emplacement stratégique, potentiel de valorisation élevé et flexibilité d’aménagement exceptionnelle.

À quelques mètres des commerces, des services publics (Mairie, Carré des Jalles) et des parkings gratuits du centre (zone bleu), le site bénéficie également d’un accès direct à la ligne de Bus G reliant Bordeaux, permettant d’atteindre la métropole rapidement et sans contraintes.

Un ensemble mixte à fort caractère, offrant de multiples destinations.
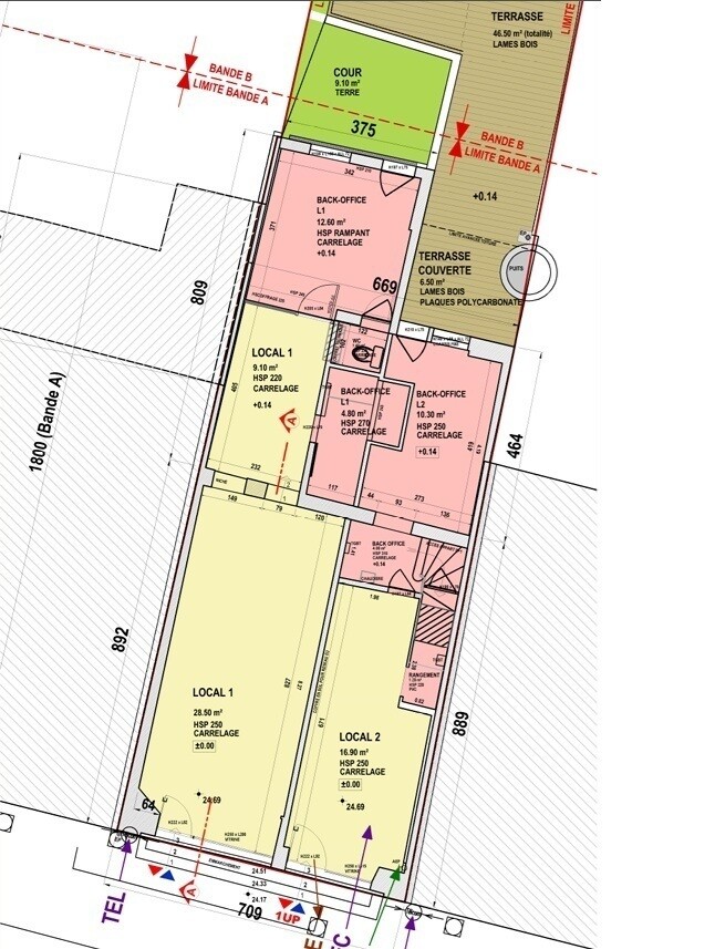
Au Rez-de-chaussée : Deux locaux commerciaux
Deux cellules commerciales distinctes, dont une totalement indépendante ce jour.
Le second local communique avec la partie habitation mais peut être cloisonné pour une activité autonome.
Très forte visibilité en étant sur l'axe principal de St Médard En Jalles et flux piéton attractif avec tous les commerces de part et d'autre.

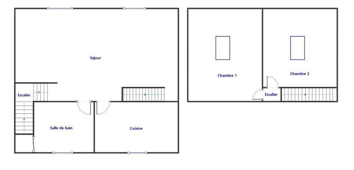
À l’étage : Un appartement T3 en duplex à rénover.
Un appartement fonctionnel de 70m2 comprenant :
Une pièce de vie lumineuse, une cuisine séparée, une salle de bain avec WC,

À l’étage, deux chambres avec placards
Un volume offrant un excellent potentiel de réhabilitation ou de valorisation locative.

Extérieurs et annexes : un atout rare en centre-ville.
Terrain: idéal pour espace vert, extension ou jardins privatifs
Grand garage de 44m2 avec R+1 de 28 m2 : parfait pour stockage, atelier ou stationnement sécurisé

Un projet clé en main : permis de construire accepté et purgé
Un permis de construire, entièrement validé et purgé de tout recours, permet la transformation de l’ensemble en un programme optimisé :
→ 2 commerces indépendants (zone PLU commerciale)
→ 1 appartement T3
→ 1 appartement T4
Chaque logement est validé avec son jardin, sa place de stationnement en garage privatifs.
Un garage à vélos en collectif complète l'aménagement extérieur.
Un projet déjà structuré, autorisé, prêt à être exécuté sans délais administratifs.

Le projet peut aussi être modifié pour garder le jardin, le garage et un seul logement.

Les atouts majeurs :
Emplacement premium en hypercentre
Accès direct Bordeaux / Bus G
Mixité commerce + habitation
Rentabilité et valorisation importantes
Terrain + garage + allée privée (rare)
Permis de construire prêt à exploitation
Idéal investisseur, marchand de biens, professionnel ou projet patrimonial
Historique de location : environ 3000 € HC / mois pour l’ensemble des deux commerces + T3

Pour toute information complémentaire ou pour organiser une visite privée : 07 81 55 73 99

Les informations sur les risques auxquels ce bien est exposé sont disponibles sur le site Géorisques : www.georisques.gouv.fr

Caractéristiques

Honoraires charge
mandant
Type
ensemble immobilier
État général
à rénover entièrement
Environnement
centre ville
Orientation
Sud
Disponibilité
immédiate
Construction
1900
Surface totale
228 m²
Surface terrain
100 m²
Floor count
2
Nb. garages
1
Nb. parking
2
Tout à l'égout

Télécharger le barème des honoraires

Tous les outils pour vos projets immobiliers

Tous les outils pour vos projets immobiliers

Découvrez Mon CID,

mon compagnon immobilier digital

Accès à toutes les ventes immobilières,

boussole à réalité augmentée,

tester le débit de votre futur achat,

calculatrice de mensualité, etc.

Application mobile disponible sur

En savoir plus

Détail des pièces

Commerce 1 55 m²
Commerce 2 32 m²

Cuisine 9,8 m²
Salle de bain 6,5 m²
Piece de vie 30 m²

Chambre 2 9 m²
Chambre 2 10 m²

Garage avec étage 72 m²

Performance énergétique

logement extrêmement performant
bâtiment performantpassoire énergétique
  • A< 70
  • B70 - 110
  • C110 - 180
  • D180 - 250
  • E250 - 330319kWh/m².an15 *kg CO2/m².an
  • F330 - 420
  • G> 420
logement extrêmement peu performant

* Dont émissions de gaz à effet de serre

peu d'émissions de CO2
  • A< 6
  • B6 - 11
  • C11 - 3015kg CO2/m².an
  • D30 - 50
  • E50 - 70
  • F70 - 100
  • G> 100
émissions de CO2 très importantes

Estimation des dépenses annuelles d'énergie pour un usage standard

entre 1 580 € et 2 160 € / an *

* Prix moyens des énergies indexés pour l'année 2021 (abonnement compris).

Simulation de prêt

(10% du prix du bien)
%
(taux moyen hors assurance)

Montant estimé

1988 € / mois *

* Calculs effectués sur la base d'un prêt à taux fixe de 3,37% sur une durée de 25 ans avec un apport de 10% et hors assurance. Le coût de l'assurance de prêt dépend du capital assuré, de votre âge, de la durée du prêt, du taux d'intérêt du prêt, de votre questionnaire de santé et/ou médical, et de votre profession. Les calculs et solutions indiqués ne revêtent aucun caractère contractuel et ne sont en aucun cas une offre de prêt. Seuls les banques et organismes de financement sont habilités à accorder un financement. Pour tout crédit immobilier, vous êtes protégés par un délai de réflexion de 10 jours. Aucun versement de quelque nature que ce soit ne peut être exigé d'un particulier avant l'obtention d'un ou de plusieurs prêts d'argent. L'achat est subordonné à l'obtention du prêt. S'il n'est pas obtenu, le vendeur doit rembourser les sommes versées. Un crédit vous engage et doit être remboursé. Vérifiez vos capacités de remboursement avant de vous engager.

Cette annonce vous intéresse ?

Prenez contact avec Michaël Larant (EI)

Michaël Larant

Agent commercial en immobilier immatriculé au RSAC de BORDEAUX sous le n°907635809

Ventes Titan d'argent 2023/2024
Ventes Titan de bronze 2024/2025

ou

Autres annonces à découvrir...

Logo LF immo

Retrouvez les annonces immobilières de notre réseau d'agents ou devenez vous-même négociateur.

Coordonnées du siège

LF immo
2 rue du Chemin de Fer
La Wantzenau, 67610 (France)
+33 3 88 62 97 69
contact@bylf.fr

Chaque agent du réseau LF immo est juridiquement et financièrement indépendant.

Filtres SVG
Logo LF immo Logo LF immo LF immo

En poursuivant votre navigation sur ce site, vous acceptez l'utilisation de Cookies pour mesurer l'audience de notre site.

En savoir plus