Description

101 m²
798 m²
4 pièces
2 chambres
2 garages

--Sous compromis, visites suspendues--

Maison plain-pied saine, 4 pièces, d’environ 101m2 habitables avec une dépendance, un jardin et un potager, le tout sur une parcelle de 7,98 ares.
L’ensemble est situé au calme au secteur Château Fiat à Haguenau (67500) proche du centre.
La maison est actuellement occupée par les propriétaires de 89 et 80 ans et voudrons continuer à garder la jouissance de la maison avec bail de location ou par une vente en viager, tout se négociera ensemble sur place avec les propriétaires avant la mise sous compromis.
La maison avec une isolation extérieure est saine et en bon état avec des fenêtres PVC récentes, un kachelofe, un chauffage centralisé au fioul, un tableau électrique refait à neuf et une salle d’eau récente avec une douche à l’italienne.
Un grand sous-sol avec un garage, une cave et une pièce aménagée en bar se trouve sous le RDC.
Également un bel extérieur aménagé avec une dépendance pour garage, stockages et une belle terrasse mi-couverte vous attend.
On peut aussi aménager environ 40m2 habitables supplémentaires à l’étage sur une dalle béton accessible par un escalier déjà en place.
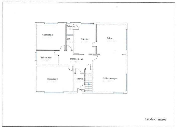
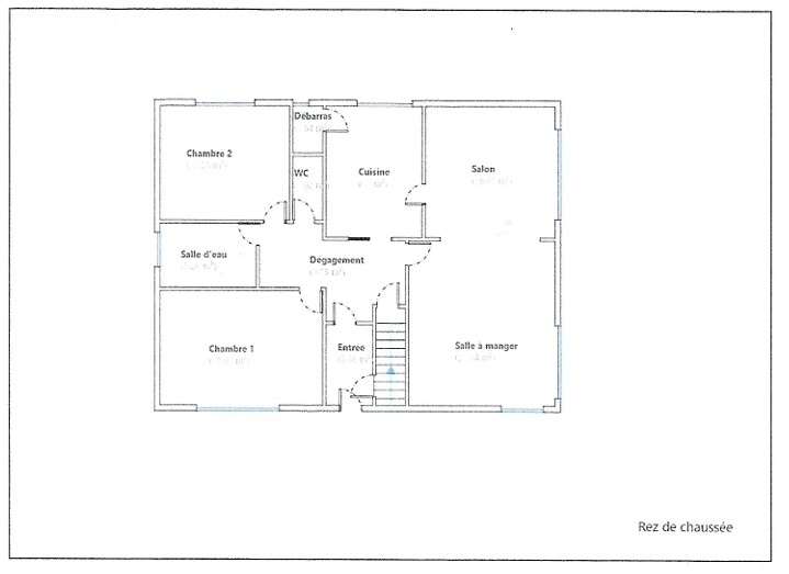
La maison est composée comme suit;
Au RDC :
-Une entrée et un dégagement
-Un salon/séjour
-Une cuisine séparée
-2 chambres
-Une salle d’eau avec douche à l’italienne
-Un WC
-Une réserve
-Une descente cave et une montée sous les combles aménageables

N'hésitez pas à me contacter pour plus de précisions

Les informations sur les risques auxquels ce bien est exposé sont disponibles sur le site Géorisques : www.georisques.gouv.fr

Caractéristiques

Honoraires charge
mandant
Type
maison
État général
bon
Environnement
zone Résidentielle
Disponibilité
à l'acte
Construction
1965
Surface terrain
798 m²
Surface habitable
101 m²
Nb. chambres
2
Nb. salles d'eau
1
Nb. cuisines
1
Nb. garages
2
Types de cuisine
équipée
Chauffages
bois et fuel
Parking privé
Sous-sol
Cave
Terrasse
Tout à l'égout

Télécharger le barème des honoraires

Localisation Haguenau, 67500

Tous les outils pour vos projets immobiliers

Tous les outils pour vos projets immobiliers

Découvrez Mon CID,

mon compagnon immobilier digital

Accès à toutes les ventes immobilières,

boussole à réalité augmentée,

tester le débit de votre futur achat,

calculatrice de mensualité, etc.

Application mobile disponible sur

En savoir plus

Plans

Performance énergétique

logement extrêmement performant
bâtiment performantpassoire énergétique
  • A< 70
  • B70 - 110
  • C110 - 180
  • D180 - 250
  • E250 - 330292kWh/m².an57 *kg CO2/m².an
  • F330 - 420
  • G> 420
logement extrêmement peu performant

* Dont émissions de gaz à effet de serre

peu d'émissions de CO2
  • A< 6
  • B6 - 11
  • C11 - 30
  • D30 - 50
  • E50 - 7057kg CO2/m².an
  • F70 - 100
  • G> 100
émissions de CO2 très importantes

Estimation des dépenses annuelles d'énergie pour un usage standard

entre 2 820 € et 3 900 € / an *

* Prix moyens des énergies indexés pour l'année 2023 (abonnement compris).

Simulation de prêt

(10% du prix du bien)
%
(taux moyen hors assurance)

Montant estimé

1177 € / mois *

* Calculs effectués sur la base d'un prêt à taux fixe de 3,37% sur une durée de 25 ans avec un apport de 10% et hors assurance. Le coût de l'assurance de prêt dépend du capital assuré, de votre âge, de la durée du prêt, du taux d'intérêt du prêt, de votre questionnaire de santé et/ou médical, et de votre profession. Les calculs et solutions indiqués ne revêtent aucun caractère contractuel et ne sont en aucun cas une offre de prêt. Seuls les banques et organismes de financement sont habilités à accorder un financement. Pour tout crédit immobilier, vous êtes protégés par un délai de réflexion de 10 jours. Aucun versement de quelque nature que ce soit ne peut être exigé d'un particulier avant l'obtention d'un ou de plusieurs prêts d'argent. L'achat est subordonné à l'obtention du prêt. S'il n'est pas obtenu, le vendeur doit rembourser les sommes versées. Un crédit vous engage et doit être remboursé. Vérifiez vos capacités de remboursement avant de vous engager.

Cette annonce vous intéresse ?

Prenez contact avec Marius Fuchs (EI)

Marius Fuchs

Agent commercial en immobilier immatriculé au RSAC de Strasbourg sous le n°832596225

Ventes Titan d'argent 2023/2024
Ventes Titan d'or 2024/2025
Agent d exception FUCHS

ou

Autres annonces à découvrir...

Logo LF immo

Retrouvez les annonces immobilières de notre réseau d'agents ou devenez vous-même négociateur.

Coordonnées du siège

LF immo
2 rue du Chemin de Fer
La Wantzenau, 67610 (France)
+33 3 88 62 97 69
contact@bylf.fr

Chaque agent du réseau LF immo est juridiquement et financièrement indépendant.

Filtres SVG
Logo LF immo Logo LF immo LF immo

En poursuivant votre navigation sur ce site, vous acceptez l'utilisation de Cookies pour mesurer l'audience de notre site.

En savoir plus