Description

55,55 m²
191 m²
3 pièces
2 chambres

Venez découvrir cette adorable maison de plain-pied, construite en 2023 par un constructeur individuel, située dans un quartier paisible et recherché, à proximité des commodités et de belles balades nature.
Parfaitement exposée est-Ouest et sans vis-à-vis, elle offre un cadre de vie agréable et lumineux.

Une maison récente, pensée pour le confort
Édifiée en brique et isolée en laine de roche, cette maison combine solidité, performance et modernité.
Sa toiture plate ondulée, facile à entretenir, ajoute une touche contemporaine à l’ensemble.


Agencement fonctionnel et convivial :
Belle pièce de vie de 26,62 m², baignée de lumière, avec cuisine équipée (four, plaque à induction, hotte aspirante)
Espace buanderie avec chauffe-eau thermodynamique
Deux chambres cosy de 9,73 m² et 9,11 m²
Salle d’eau moderne de 4,27 m² avec douche à l’italienne et WC
WC séparé supplémentaire

Le tout sur un terrain de 191 m², entièrement clôturé, avec portail aluminium.

Prestations de qualité :
Construction RT2012
Menuiseries PVC double vitrage
Volets roulants électriques
Climatisation réversible pour un confort été comme hiver
Sol en parquet stratifié, chaleureux et facile d’entretien
Plomberie PER
Raccordée au tout-à-l’égout
Taxe foncière 948 €
Garantie décennale en cours

Visite virtuelle disponible avec code privée

Ce qu’on aime :
Son ambiance cocooning et sa luminosité naturelle
Le calme absolu du quartier
Sa proximité des commodités, sans renoncer à la tranquillité

Une maison clé en main, idéale pour un premier achat, un couple, une personne seule ou un investissement locatif
Une maison récente, bien pensée et pleine de charme, où il ne reste plus qu’à poser vos valises !

Chers confrères, chères consœurs,
c’est avec grand plaisir que nous collaborons avec vous !

Les informations sur les risques auxquels ce bien est exposé sont disponibles sur le site Géorisques : www.georisques.gouv.fr

Caractéristiques

Honoraires charge
mandant
Type
maison
État général
très bon
Environnement
lotissement
Orientation
Ouest
Disponibilité
à l'acte
Construction
2023
Surface terrain
191 m²
Surface habitable
55,55 m²
Nb. chambres
2
Nb. salles d'eau
1
Nb. cuisines
1
Types de cuisine
équipée
Chauffages
électricité et clim réversible
Tout à l'égout
Taxe foncière
350,00 €

Télécharger le barème des honoraires

Localisation Limoux, 11300

Tous les outils pour vos projets immobiliers

Tous les outils pour vos projets immobiliers

Découvrez Mon CID,

mon compagnon immobilier digital

Accès à toutes les ventes immobilières,

boussole à réalité augmentée,

tester le débit de votre futur achat,

calculatrice de mensualité, etc.

Application mobile disponible sur

En savoir plus

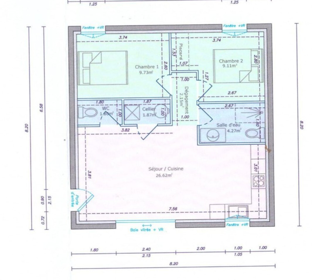
Plans

Détail des pièces

piece de vie 27 m²
wc 1,8 m²
cellier 1,9 m²
salle d'eau + wc 4,3 m²
dégagement 2,2 m²
chambre 9,7 m²
chambre 9,1 m²

Performance énergétique

logement extrêmement performant
bâtiment performantpassoire énergétique
  • A< 701kWh/m².an1 *kg CO2/m².an
  • B70 - 110
  • C110 - 180
  • D180 - 250
  • E250 - 330
  • F330 - 420
  • G> 420
logement extrêmement peu performant

* Dont émissions de gaz à effet de serre

peu d'émissions de CO2
  • A< 61kg CO2/m².an
  • B6 - 11
  • C11 - 30
  • D30 - 50
  • E50 - 70
  • F70 - 100
  • G> 100
émissions de CO2 très importantes

Estimation des dépenses annuelles d'énergie pour un usage standard

entre 270 € et 420 € / an *

* Prix moyens des énergies indexés pour l'année 2021 (abonnement compris).

Simulation de prêt

(10% du prix du bien)
%
(taux moyen hors assurance)

Montant estimé

557 € / mois *

* Calculs effectués sur la base d'un prêt à taux fixe de 3,39% sur une durée de 25 ans avec un apport de 10% et hors assurance. Le coût de l'assurance de prêt dépend du capital assuré, de votre âge, de la durée du prêt, du taux d'intérêt du prêt, de votre questionnaire de santé et/ou médical, et de votre profession. Les calculs et solutions indiqués ne revêtent aucun caractère contractuel et ne sont en aucun cas une offre de prêt. Seuls les banques et organismes de financement sont habilités à accorder un financement. Pour tout crédit immobilier, vous êtes protégés par un délai de réflexion de 10 jours. Aucun versement de quelque nature que ce soit ne peut être exigé d'un particulier avant l'obtention d'un ou de plusieurs prêts d'argent. L'achat est subordonné à l'obtention du prêt. S'il n'est pas obtenu, le vendeur doit rembourser les sommes versées. Un crédit vous engage et doit être remboursé. Vérifiez vos capacités de remboursement avant de vous engager.

Cette annonce vous intéresse ?

Prenez contact avec Gwendoline Gouazé (EI)

Gwendoline Gouazé

Agent commercial en immobilier immatriculé au RSAC de Carcassonne sous le n°879221356

Développeur d'équipe Titan de bronze 2023/2024
Développeur d'équipe Titan d'or 2024/2025
Ventes Titan de bronze 2024/2025

ou

Autres annonces à découvrir...

Logo LF immo

Retrouvez les annonces immobilières de notre réseau d'agents ou devenez vous-même négociateur.

Coordonnées du siège

LF immo
2 rue du Chemin de Fer
La Wantzenau, 67610 (France)
+33 3 88 62 97 69
contact@bylf.fr

Chaque agent du réseau LF immo est juridiquement et financièrement indépendant.

Filtres SVG
Logo LF immo Logo LF immo LF immo

En poursuivant votre navigation sur ce site, vous acceptez l'utilisation de Cookies pour mesurer l'audience de notre site.

En savoir plus