Description
Spacieuse maison de 144m² exposition sud non mitoyenne édifiée sur un terrain de 688m². Un rafraichissement général est à prévoir, idéale grande famille, investisseur ou profession libérale, beaucoup de potentiel et emplacement privilégier sur la commune.
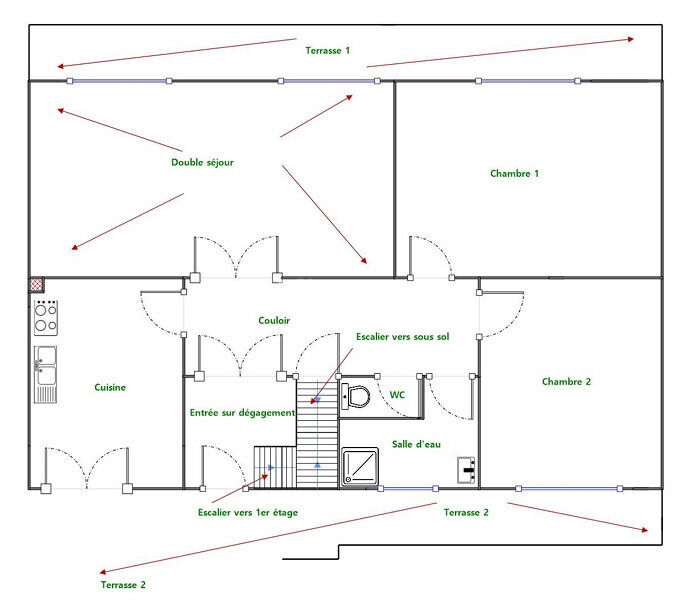
Le bien est composé de :
Sous sol total semi enterré aménagé avec accès indépendant :
- 3 chambres avec douche et lavabo
- 2 bureaux
- WC
- Chaufferie
Rez de chaussée :
- Entrée
- Cuisine
- Séjour
- 2 chambres
- Salle d'eau
- WC séparé
1er étage :
- 3 chambres
- 2 bureaux ou dressing
- Salle de bain
- WC séparé
Un beau jardin arboré et un box complète ce bien + possibilité de garer plusieurs véhicules dans l'enceinte de la propriété. Située quartier Anatole France vous serez proche des écoles et des commerces.
Ne passez pas à côté de cette opportunité ! Contactez moi pour une visite !
Les informations sur les risques auxquels ce bien est exposé sont disponibles sur le site Géorisques : www.georisques.gouv.fr
Caractéristiques
- Prix hors honoraires d'agence
- 373 000,00 €
- Honoraires charge
- acquéreur
- Pourcentage à la charge de l'acquéreur
- 1,61%
- Type
- maison
- État général
- à rafraîchir
- Environnement
- urbain
- Orientation
- Sud
- Disponibilité
- à l'acte
- Construction
- 1972
- Surface terrain
- 688 m²
- Surface habitable
- 144 m²
- Nb. chambres
- 8
- Nb. salles de bains
- 1
- Nb. salles d'eau
- 1
- Nb. cuisines
- 1
- Nb. garages
- 1
- Nb. parking
- 2
- Types de cuisine
- aménagée
- Chauffages
- gaz
- Terrasse
- Taxe foncière
- 2 665,00 €
Localisation Villeparisis, 77270

Tous les outils pour vos projets immobiliers
Découvrez Mon CID,
mon compagnon immobilier digital
Accès à toutes les ventes immobilières,
boussole à réalité augmentée,
tester le débit de votre futur achat,
calculatrice de mensualité, etc.
Performance énergétique
- A< 70
- B70 - 110
- C110 - 180
- D180 - 250
- E250 - 330329kWh/m².an65 *kg CO2/m².an
- F330 - 420
- G> 420
* Dont émissions de gaz à effet de serre
peu d'émissions de CO2- A< 6
- B6 - 11
- C11 - 30
- D30 - 50
- E50 - 7065kg CO2/m².an
- F70 - 100
- G> 100
Estimation des dépenses annuelles d'énergie pour un usage standard
entre 4 130 € et 5 640 € / an *
* Prix moyens des énergies indexés pour l'année 2022 (abonnement compris).
Simulation de prêt
* Calculs effectués sur la base d'un prêt à taux fixe de 3,31% sur une durée de 25 ans avec un apport de 10% et hors assurance. Le coût de l'assurance de prêt dépend du capital assuré, de votre âge, de la durée du prêt, du taux d'intérêt du prêt, de votre questionnaire de santé et/ou médical, et de votre profession. Les calculs et solutions indiqués ne revêtent aucun caractère contractuel et ne sont en aucun cas une offre de prêt. Seuls les banques et organismes de financement sont habilités à accorder un financement. Pour tout crédit immobilier, vous êtes protégés par un délai de réflexion de 10 jours. Aucun versement de quelque nature que ce soit ne peut être exigé d'un particulier avant l'obtention d'un ou de plusieurs prêts d'argent. L'achat est subordonné à l'obtention du prêt. S'il n'est pas obtenu, le vendeur doit rembourser les sommes versées. Un crédit vous engage et doit être remboursé. Vérifiez vos capacités de remboursement avant de vous engager.
Cette annonce vous intéresse ?
Prenez contact avec Régis Desmoulins (EI)

Agent commercial en immobilier immatriculé au RSAC de MEAUX sous le n°978394294