Description

101 m²
3 pièces
1 chambre
piscine

Découvrez cette élégante maison jumelée d’environ 101 m², accompagnée d’un studio indépendant, située au cœur du très recherché Domaine des Hauts de Vaugrenier. Parfaite pour une famille, un regroupement familial ou une profession libérale, elle offre un cadre de vie méditerranéen exceptionnel, calme et sécurisé.

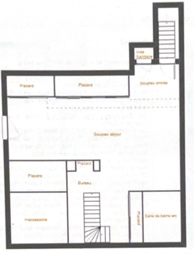
La maison dispose d’un agréable patio d’environ 20 m² ainsi que d’une terrasse sans vis-à-vis de près de 18 m². Le niveau principal, d’une superficie d’environ 51 m², se compose d’un grand séjour lumineux ouvrant directement sur les espaces extérieurs, d’une cuisine entièrement équipée idéale pour recevoir, d’une chambre, d’une salle de douche italienne avec sèche-serviettes, d’un WC séparé, de nombreux rangements, de la climatisation réversible, deux radiateurs, ainsi que de volets roulants et d’un store électrique extérieur.

Le niveau inférieur, un souplex d’environ 50 m², constitue d'un studio disposant d’un accès intérieur et d’une entrée extérieure indépendante avec une salle de bain. Possibilité d’être transformé selon vos besoins.

Radiateurs électriques Sauter, double vitrage, deux compteurs aux normes et de deux cumulus indépendants.

Ce domaine résidentiel privilégié et hautement sécurisé propose une qualité de vie rare, associant calme et services à proximité. Il offre une sécurité 24h/24, une piscine olympique, des courts de tennis, des aires de jeux, ainsi que des commerces, restaurants et une école sur place. La présence d’un bus direct vers Sophia Antipolis facilite les déplacements professionnels, tandis que les plages, les infrastructures et les axes principaux se trouvent à seulement quelques minutes.

Ce lieu représente l’endroit idéal pour une vie confortable et sereine dans un cadre exceptionnel. Si vous recherchez calme, nature et une qualité de vie incomparable, n’hésitez pas à me contacter pour découvrir ce bien et y projeter votre futur quotidien.

Gabriela Reinhold
+33 6 37 58 26 24

Les informations sur les risques auxquels ce bien est exposé sont disponibles sur le site Géorisques : www.georisques.gouv.fr

Caractéristiques

Honoraires charge
mandant
Type
maison
État général
très bon
Environnement
lotissement
Disponibilité
date à convenir
Construction
1982
Surface totale
101 m²
Surface habitable
101 m²
Nb. chambres
1
Nb. salles d'eau
1
Nb. cuisines
1
Nb. parking
1
Types de cuisine
équipée
Chauffages
électricité et clim réversible
Parking privé
Terrasse
Piscine
Tout à l'égout
Bien soumis au statut de la copropriété
Procédure en cours
aucune
Charges budget prévisionnel annuel
1 920,00 €
Nb. de logements
80
Nb. de lots
160
Taxe foncière
1 115,00 €

Télécharger le barème des honoraires

Localisation Villeneuve Loubet, 06270

DécouvrirLa ville

DécouvrirLe quartier

Présentation vidéo du quartier

Pour des raisons de confidentialité, la géolocalisation de ce bien a été dégradée.

Tous les outils pour vos projets immobiliers

Tous les outils pour vos projets immobiliers

Découvrez Mon CID,

mon compagnon immobilier digital

Accès à toutes les ventes immobilières,

boussole à réalité augmentée,

tester le débit de votre futur achat,

calculatrice de mensualité, etc.

Application mobile disponible sur

En savoir plus

Plans

Performance énergétique

logement extrêmement performant
bâtiment performantpassoire énergétique
  • A< 70
  • B70 - 110
  • C110 - 180
  • D180 - 250248kWh/m².an7 *kg CO2/m².an
  • E250 - 330
  • F330 - 420
  • G> 420
logement extrêmement peu performant

* Dont émissions de gaz à effet de serre

peu d'émissions de CO2
  • A< 6
  • B6 - 117kg CO2/m².an
  • C11 - 30
  • D30 - 50
  • E50 - 70
  • F70 - 100
  • G> 100
émissions de CO2 très importantes

Estimation des dépenses annuelles d'énergie pour un usage standard

entre 800 € et 1 120 € / an *

* Prix moyens des énergies indexés pour l'année 2023 (abonnement compris).

Simulation de prêt

(10% du prix du bien)
%
(taux moyen hors assurance)

Montant estimé

2805 € / mois *

* Calculs effectués sur la base d'un prêt à taux fixe de 3,39% sur une durée de 25 ans avec un apport de 10% et hors assurance. Le coût de l'assurance de prêt dépend du capital assuré, de votre âge, de la durée du prêt, du taux d'intérêt du prêt, de votre questionnaire de santé et/ou médical, et de votre profession. Les calculs et solutions indiqués ne revêtent aucun caractère contractuel et ne sont en aucun cas une offre de prêt. Seuls les banques et organismes de financement sont habilités à accorder un financement. Pour tout crédit immobilier, vous êtes protégés par un délai de réflexion de 10 jours. Aucun versement de quelque nature que ce soit ne peut être exigé d'un particulier avant l'obtention d'un ou de plusieurs prêts d'argent. L'achat est subordonné à l'obtention du prêt. S'il n'est pas obtenu, le vendeur doit rembourser les sommes versées. Un crédit vous engage et doit être remboursé. Vérifiez vos capacités de remboursement avant de vous engager.

Cette annonce vous intéresse ?

Prenez contact avec Gabriela Reinhold (EI)

Gabriela Reinhold

Agent commercial en immobilier immatriculé au RSAC de Antibes sous le n°804491397


ou

Autres annonces à découvrir...

Logo LF immo

Retrouvez les annonces immobilières de notre réseau d'agents ou devenez vous-même négociateur.

Coordonnées du siège

LF immo
2 rue du Chemin de Fer
La Wantzenau, 67610 (France)
+33 3 88 62 97 69
contact@bylf.fr

Chaque agent du réseau LF immo est juridiquement et financièrement indépendant.

Filtres SVG
Logo LF immo Logo LF immo LF immo

En poursuivant votre navigation sur ce site, vous acceptez l'utilisation de Cookies pour mesurer l'audience de notre site.

En savoir plus