Description

80 m²
4 pièces
3 chambres
1 sdb

(Ce bien à l'état neuf et jamais habité avec balcon et parking est déjà vendu par Alain Brecheisen - 06 23 18 57 74
= Vous savez que vous vendez "ZEN" avec Alain Brecheisen.)
Mandat de vente le 05/01/2019. Compromis de vente au prix du mandat le 22/02/2019.
Pour sécuriser aussi votre vente, rencontrons-nous, maintenant !

Les informations sur les risques auxquels ce bien est exposé sont disponibles sur le site Géorisques : www.georisques.gouv.fr

Caractéristiques

Honoraires charge
mandant
Type
appartement
État général
neuf
Environnement
clos privé
Orientation
Sud
Disponibilité
immédiate
Construction
2017
Surface totale
80 m²
Surface habitable
80 m²
Étage
2
Floor count
4
Nb. chambres
3
Nb. salles de bains
1
Nb. cuisines
1
Nb. parking
2
Nb. balcons
1
Chauffages
gaz
Chauffage collectif
Parking privé
Accès handicapé
Ascenseur
Tout à l'égout
Bien soumis au statut de la copropriété
Procédure en cours
aucune
Charges budget prévisionnel annuel
2 076,00 €
Nb. de logements
30
Nb. de lots
60

Télécharger le barème des honoraires

Localisation Strasbourg, 67100

Tous les outils pour vos projets immobiliers

Tous les outils pour vos projets immobiliers

Découvrez Mon CID,

mon compagnon immobilier digital

Accès à toutes les ventes immobilières,

boussole à réalité augmentée,

tester le débit de votre futur achat,

calculatrice de mensualité, etc.

Application mobile disponible sur

En savoir plus

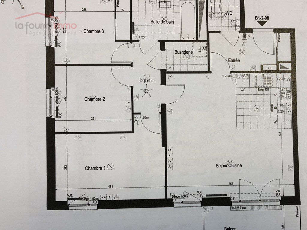
Détail des pièces

entrée 5,5 m²
séjour 30 m²
chambre 1 14 m²
chambre 2 9,1 m²
chambre 3 9 m²
salle de bains 5 m²
wc séparés 2 m²
buanderie 2,4 m²

Performance énergétique

Logement économe
  • A< 51
  • B51 - 9066
  • C91 - 150
  • D151 - 230
  • E231 - 330
  • F331 - 450
  • G> 450
Logement énergivore

Consommations énergétiques

Consommations énergétiques (en énergie primaire) pour le chauffage, la production d'eau chaude sanitaire et le refroidissement.

Unité de mesure : kWh/m².an
Faible émission de GES
  • A< 6
  • B6 - 10
  • C11 - 2013
  • D21 - 35
  • E36 - 55
  • F56 - 80
  • G> 80
Forte émission de GES

Emissions de gaz à effet de serre (GES)

Emissions de gaz à effet de serre (GES) pour le chauffage, la production d'eau chaude sanitaire et le refroidissement.

Unité de mesure : kg CO2/m².an

Estimation des dépenses annuelles d'énergie pour un usage standard

environ 0 € / an *

* Prix moyens des énergies indexés pour l'année 2018 (abonnement compris).

Déjà vendu !

par Alain Brecheisen (EI)

Alain Brecheisen

Agent commercial en immobilier immatriculé au RSAC de Strasbourg sous le n°437807415

Logo LF immo

Retrouvez les annonces immobilières de notre réseau d'agents ou devenez vous-même négociateur.

Coordonnées du siège

LF immo
2 rue du Chemin de Fer
La Wantzenau, 67610 (France)
+33 3 88 62 97 69
contact@bylf.fr

Chaque agent du réseau LF immo est juridiquement et financièrement indépendant.

Filtres SVG
Logo LF immo Logo LF immo LF immo

En poursuivant votre navigation sur ce site, vous acceptez l'utilisation de Cookies pour mesurer l'audience de notre site.

En savoir plus